
Planning and Development Committee
Agenda
1 September 2020
Notice is hereby given, in accordance with the provisions of the Local Government Act 1993 that a Planning and Development Committee meeting of ORANGE CITY COUNCIL will be held in the Council Chamber, Civic Centre, Byng Street, Orange WITH AN OPTION OF ONLINE CONFERENCING PLATFORM ZOOM DUE TO COVID-19 REQUIREMENTS on Tuesday, 1 September 2020.
David Waddell
Chief Executive Officer
For apologies please contact Administration on 6393 8218.
Planning and Development Committee 1 September 2020
2.1 Item Approved Under the Delegated Authority of Council
2.3 Development Application DA 221/2020(1) - 78 Forbes Road
2.4 Development Application DA 191/2020(1) - 4613 Mitchell Highway, Lucknow
1 Introduction
1.1 Declaration of pecuniary interests, significant non-pecuniary interests and less than significant non-pecuniary interests
The provisions of Chapter 14 of the Local Government Act, 1993 (the Act) regulate the way in which Councillors and designated staff of Council conduct themselves to ensure that there is no conflict between their private interests and their public role.
The Act prescribes that where a member of Council (or a Committee of Council) has a direct or indirect financial (pecuniary) interest in a matter to be considered at a meeting of the Council (or Committee), that interest must be disclosed as soon as practicable after the start of the meeting and the reasons given for declaring such interest.
As members are aware, the provisions of the Local Government Act restrict any member who has declared a pecuniary interest in any matter from participating in the discussion or voting on that matter, and requires that member to vacate the Chamber.
Council’s Code of Conduct provides that if members have a non-pecuniary conflict of interest, the nature of the conflict must be disclosed. The Code of Conduct also provides for a number of ways in which a member may manage non pecuniary conflicts of interest.
|
Recommendation It is recommended that Committee Members now disclose any conflicts of interest in matters under consideration by the Planning and Development Committee at this meeting. |
RECORD NUMBER: 2020/1297
AUTHOR: Paul Johnston, Manager Development Assessments
EXECUTIVE Summary
Following is a list of more significant development applications approved by the Chief Executive Officer under the delegated authority of Council. Not included in this list are residential scale development applications that have also been determined by staff under the delegated authority of Council (see last paragraph of this report for those figures).
Link To Delivery/OPerational Plan
The recommendation in this report relates to the Delivery/Operational Plan strategy “7.1 Preserve - Engage with the community to develop plans for growth and development that value the local environment”.
Financial Implications
Nil
Policy and Governance Implications
Nil
|
That Council resolves to acknowledge the information provided in the report by the Manager Development Assessments on Items Approved Under the Delegated Authority of Council. |
further considerations
Consideration has been given to the recommendation’s impact on Council’s service delivery; image and reputation; political; environmental; health and safety; employees; stakeholders and project management; and no further implications or risks have been identified.
|
Reference: |
DA 527/2003(5) |
Determination Date |
14 August 2020 |
|
PR Number |
PR20410 |
||
|
Applicant/s: |
Mr A Harvey |
||
|
Owner/s: |
Harvandi Pty Limited |
||
|
Location: |
Lot 102 DP 1084285 – 159A Sale Street, Orange |
||
|
Proposal: |
Modification of development consent - subdivision (three lot residential), subdivision (two lot residential), demolition (two garages), medium density development (eight residential units) and subdivision (nine lot Community title). The modification involves introducing a two lot subdivision as Stage 2 and changing the Strata subdivision to Community title. |
||
|
Value: |
$0 |
||
|
Reference: |
DA 114/2016(3) |
Determination Date |
6 August 2020 |
|
PR Number |
PR27143 |
||
|
Applicant/s: |
Orange Waratah Sports Club Limited |
||
|
Owner/s: |
Crown Land (Lot 210 DP 1209495) c/- Orange City Council and Orange Waratahs Sports Club Ltd (Lot 31 DP 1215943) |
||
|
Location: |
Lot 210 DP 1209495 and Lot 31 DP 1215943 – 36 Telopea Way, Orange |
||
|
Proposal: |
Modification of development consent - recreation facility (proposed sports field and earthworks), alterations and additions to existing building (storage shed). The modification involves changes to the shed element of the original consent; including making the extension larger to provide toilets and change rooms, internal alterations to the floor layout, adding a mezzanine level to the extension, and adding external awnings to the shed. |
||
|
Value: |
$0 |
||
|
Reference: |
DA 203/2016(2) |
Determination Date |
29 July 2020 |
|
PR Number |
PR27615 |
||
|
Applicant/s: |
Rawson Homes Pty Ltd |
||
|
Owner/s: |
Rawson Homes Pty Ltd |
||
|
Location: |
Lot 105 DP 1225229, Lot 41 DP 1195966 - 33 William Maker Drive, Orange |
||
|
Proposal: |
Modification of development consent - exhibition home and business identification sign. The modification involves amending Condition 38 of the original consent to allow for extended use. |
||
|
Value: |
$0 |
||
|
Reference: |
DA 203/2016(3) |
Determination Date |
10 August 2020 |
|
PR Number |
PR27615 |
||
|
Applicant/s: |
Rawson Homes Pty Ltd |
||
|
Owner/s: |
Rawson Homes Pty Ltd |
||
|
Location: |
Lot 105 DP 1225229, Lot 41 DP 1195966 - 33 William Maker Drive, Orange |
||
|
Proposal: |
Modification of development consent - exhibition home and business identification sign. The modification involves amending the hours of the exhibition home a. This will be achieved by amending Condition 37 of the latest development application consent. |
||
|
Value: |
$0 |
||
|
Reference: |
DA 29/2019(2) |
Determination Date |
20 August 2020 |
|
PR Number |
PR20239 |
||
|
Applicant/s: |
Canobolas Diesel and Turbo |
||
|
Owner/s: |
Mr CB and Mrs KM Naveau |
||
|
Location: |
Lot 71 DP 1077737 – 57 Astill Drive, Orange |
||
|
Proposal: |
Modification of development consent – vehicle repair station and business identification signage. The modification involves removing a condition of consent relating to a water and sewer contribution for the wash bay. |
||
|
Value: |
$0 |
||
|
Reference: |
DA 81/2019(2) |
Determination Date |
4 August 2020 |
|
PR Number |
PR2678 |
||
|
Applicant/s: |
Mr PK Bromley |
||
|
Owner/s: |
Mr PK Bromley |
||
|
Location: |
Lot 1 DP 196341 – 111 Clinton Street, Orange |
||
|
Proposal: |
Modification of development consent - demolition of garage, carport, and swimming pool; partial demolition and replacement of western portion of existing dwelling house; partial demolition and replacement of boundary fencing; new detached garage (ground floor) with secondary dwelling (first floor). The modification alters the style and building materials of the fence. |
||
|
Value: |
$0 |
||
|
Reference: |
DA 102/2020(1) |
Determination Date |
19 August 2020 |
|
PR Number |
PR27608 |
||
|
Applicant/s: |
Boffa Robertson Group |
||
|
Owner/s: |
Mission Australia |
||
|
Location: |
Lot 101 DP 1225276 – 130 Huntley Road, Orange |
||
|
Proposal: |
Seniors Housing (boundary fence) |
||
|
Value: |
$85,000 |
||
|
Reference: |
DA 135/2020(1) |
Determination Date |
23 July 2020 |
|
PR Number |
PR26080 |
||
|
Applicant/s: |
West Orange Holdings Pty Ltd |
||
|
Owner/s: |
West Orange Holdings Pty Limited |
||
|
Location: |
Lot 102 DP 1187463 - 22-34 Forbes Road, Orange |
||
|
Proposal: |
Vehicle sales or hire premises (alterations and additions to existing buildings and change of use) and business identification signage |
||
|
Value: |
$250,000 |
||
|
Reference: |
DA 202/2020(1) |
Determination Date |
12 August 2020 |
|
PR Number |
PR17764 |
||
|
Applicant/s: |
Anson Street School |
||
|
Owner/s: |
Anson Street School |
||
|
Location: |
Lot 5 DP 602502 - 94 Anson Street, Orange |
||
|
Proposal: |
Business identification sign |
||
|
Value: |
$0 |
||
|
Reference: |
DA 214/2020(1) |
Determination Date |
4 August 2020 |
|
PR Number |
PR22175 |
||
|
Applicant/s: |
Mr P Van Der Boon |
||
|
Owner/s: |
Mr P and Mrs L Van Der Boon |
||
|
Location: |
Lot 1 DP 1107969 – 774 Burrendong Way, Orange |
||
|
Proposal: |
Secondary dwelling |
||
|
Value: |
$100,000 |
||
|
Reference: |
DA 227/2020(1) |
Determination Date |
3 August 2020 |
|
PR Number |
PR28314 and PR28312 |
||
|
Applicant/s: |
Verde Orange Pty Ltd |
||
|
Owner/s: |
Verde Orange Pty Ltd |
||
|
Location: |
Lots 500 and 502 DP 1249083 - 105 Prince Street and 291 Anson Street, Orange |
||
|
Proposal: |
Subdivision (boundary adjustment and right-of-way access) |
||
|
Value: |
$0 |
||
|
Reference: |
DA 234/2020(1) |
Determination Date |
19 August 2020 |
|
PR Number |
PR1189 |
||
|
Applicant/s: |
Mr A Blyth |
||
|
Owner/s: |
Mr A Blyth and Ms DL Chappel |
||
|
Location: |
Lot 4 DP 19613 – 126 Bathurst Road, Orange |
||
|
Proposal: |
Medical centre (change of use) |
||
|
Value: |
$80,000 |
||
|
Reference: |
DA 237/2020(1) |
Determination Date |
5 August 2020 |
|
PR Number |
PR18279 |
||
|
Applicant/s: |
Mr P Layton |
||
|
Owner/s: |
Astill Pty Ltd |
||
|
Location: |
Lot 31 DP 1035913 – 2/ 25 Astill Drive, Orange |
||
|
Proposal: |
Warehouse or distribution centre and kiosk |
||
|
Value: |
$20,000 |
||
|
Reference: |
DA 240/2020(1) |
Determination Date |
12 August 2020 |
|
PR Number |
PR7086 |
||
|
Applicant/s: |
PL on 4 Pty Ltd ATF Lords Place Property Trust |
||
|
Owner/s: |
PL on 4 Pty Ltd |
||
|
Location: |
Lot 20 DP 11439 – 146-148 Lords Place, Orange |
||
|
Proposal: |
Office premises (alterations to existing building – demolition and reinstatement of awnings, and repainting of façade) |
||
|
Value: |
$20,000 |
||
|
Reference: |
DA 245/2020(1) |
Determination Date |
3 August 2020 |
|
PR Number |
PR12025 |
||
|
Applicant/s: |
Mr MA Lukic |
||
|
Owner/s: |
Mr MA Lukic and Ms D Racic |
||
|
Location: |
Lots 26 and 25 DP35002 - 39 and 41 Tobruk Crescent, Orange |
||
|
Proposal: |
Subdivision (boundary adjustment) |
||
|
Value: |
$10,000 |
||
|
Reference: |
DA 253/2020(1) |
Determination Date |
7 August 2020 |
|
PR Number |
PR20524 |
||
|
Applicant/s: |
Mr MP and Mrs LM Molloy |
||
|
Owner/s: |
Mr MP and Mrs LM Molloy |
||
|
Location: |
Lot 100 DP1092868, 360 Phoenix Mine Road, Huntley |
||
|
Proposal: |
Recreation facility (outdoor) (tennis court) |
||
|
Value: |
$105,000 |
||
|
Reference: |
DA 257/2020(1) |
Determination Date |
23 July 2020 |
|
PR Number |
PR28646 |
||
|
Applicant/s: |
Ross Hill Wine Group Pty Ltd |
||
|
Owner/s: |
Sweetwater Grapes Pty Ltd, Ross Hammond Pty Ltd and Tynie Pty Ltd |
||
|
Location: |
Lot 101 DP 1261108 - 132 Wallace Lane, Canobolas |
||
|
Proposal: |
Cellar door premises (amenities addition) |
||
|
Value: |
$31,000 |
||
TOTAL NET* VALUE OF 17 DEVELOPMENTS APPROVED BY THE CEO UNDER DELEGATED AUTHORITY IN THIS PERIOD: $701,000
* Net value relates to the value of modifications. If modifications are the same value as the original DA, then nil is added. If there is a plus/minus difference, this difference is added or taken out.
Additionally, since the August PDC meeting report periods (23 July to 24 August 2020), a total of 40 development applications were determined under delegated authority by other Council staff with a combined value of $8,296,575.
2.2 Development Application DA 187/2020(1) - Byng, March and Peisley Streets, and Lords Place (Orange Civic Precinct)
RECORD NUMBER: 2020/980
AUTHOR: Kelly Walker, Senior Planner
EXECUTIVE Summary
|
Application lodged |
18 May 2020 |
|
Applicant/s |
Orange City Council |
|
Owner/s |
Orange City Council |
|
Land description |
Lot 1 DP 257566 - 151 and 151A Byng Street; Lot 11 DP 706480 - 284 Lords Place; Lot Z DP 108472 - 282 Lords Place; Lots 7, 8, and 9 DP 820905 - 147-149 Byng Street, March Street, Peisley Street, and Byng Street; Lot 42 42 PCE C DP 841174 - 286-290 Lords Place; Lot 3 PCE PT and Lot 3 PCE PT SEC 43 DP 1064225 – 270‑276 Lords Place; Lots 100, 101 and 102 DP 1072260 - 135 Byng Street, 266 and 278-280 Lords Place, 142-148 March Street; 270-276, 282, and 284 Lords Place |
|
Proposed land use |
Mixed Use Development (community facility, entertainment facility, information and education facility, markets and other uses) |
|
Value of proposed development |
$0 |
Council's consent is sought to formalise the use of Council’s Civic Centre Precinct for events, on land bordered by March, Byng and Peisley Streets, and Lords Place (see Figure 1). The land currently has existing buildings including the Orange Regional Art Gallery, Orange Regional Museum, Orange City Library, Orange Visitor Information Centre, Council’s Civic Centre offices, Orange Civic Theatre, Giyalang Ganya offices, and various other Council community services buildings. There is also a large car park accessed off Lords Place, as well as open space areas known as ‘Northcourt’, ‘Southcourt’, and the museum roof. The eastern portion of the precinct (Lots 7, 8 and 9 DP820905, and Lot 1 DP257566) is owned by Crown Lands, but is managed by Council.
The buildings and spaces are used for a variety of Council and community activities, including administration, community services, arts and cultural services, community events and fundraisers, etc. Some of these activities are carried out directly by, or on behalf of, Council, and the subject buildings and areas are also leased out for community events and the likes. This application seeks to formalise the community, recreation, entertainment, and market uses of these buildings and spaces, where previous consents do not cover all of the different uses this precinct is now used for.
This application does not involve any changes to the existing buildings or layout of the land, and no works are proposed to be carried out. Hours of operation, patron/attendee numbers, staffing, security, etc. will depend on the event itself, which are managed through a separate user/hire agreement with Council to use the land. As such, the granting of this consent will not negate the need for third parties to enter into the usual agreement with Council.
These agreements come with their own set of requirements (separate to the DA process and the assessment of this application), and are assessed on a case-by-case basis by relevant Council officers. Any structures to be erected as part of any event or use of the land, such as cinema screens, stages, marquees, etc. need to meet the exempt planning requirements, or will require separate development consent, as this application does not cover the erection of such structures. Other approvals may also be required, such as Liquor Licence to sell/serve alcohol, Section 68 Approval for amusement devices, etc.

Figure 1 - locality plan
It is noted that the Orange Conservatorium-Planetarium project, which involves a combined Arts, Education, and Science facility, comprised of a Conservatorium, Recital Hall, and Planetarium, is currently being assessed by Council. The project proposes a new public building to be constructed on the Northcourt and open space areas on the northern part of the site, which will limit the extent of events that can be carried out on this part of the land in the future (i.e. once the new building is constructed). Large scale events in particular are likely to be relocated to another site following the implementation of that project.
Overall it is considered that the proposal meets the relevant planning provisions, and the current Plan of Management (PoM) for the land, therefore approval of the application is recommended. A draft Notice of Approval is attached.
DECISION FRAMEWORK
Development in Orange is governed by two key documents Orange Local Environment Plan 2011 (LEP) and Orange Development Control Plan 2004 (DCP). In addition the Infill Guidelines are used to guide development, particularly in the heritage conservation areas and around heritage items.
Orange Local Environment Plan 2011 – The provisions of the LEP must be considered by the Council in determining the application. LEPs govern the types of development that are permissible or prohibited in different parts of the City and also provide some assessment criteria in specific circumstances. Uses are either permissible or not. The objectives of each zoning and indeed the aims of the LEP itself are also to be considered and can be used to guide decision making around appropriateness of development.
Orange Development Control Plan 2004 – the DCP provides guidelines for development. In general it is a performance based document rather than prescriptive in nature. For each planning element there are often guidelines used. These guidelines indicate ways of achieving the planning outcomes. It is thus recognised that there may also be other solutions of merit. All design solutions are considered on merit by planning and building staff. Applications should clearly demonstrate how the planning outcomes are being met where alternative design solutions are proposed. The DCP enables developers and architects to use design to achieve the planning outcomes in alternative ways.
DIRECTOR’S COMMENT
This Development Application simply formalises the longstanding public activities and events that have been conducted within the Civic Precinct as ‘ancillary development’ for many years. It is understood that restrictions associated with other Government approvals (liquor) warrant the need to have a formal development consent document in place. This Application will provide the required formality to permit licencing to continue. There is no other material change to the use this space under this proposal.
Link To Delivery/OPerational Plan
The recommendation in this report relates to the Delivery/Operational Plan strategy “10.1 Preserve - Engage with the community to ensure plans for growth and development are respectful of our heritage”.
Financial Implications
Nil
Policy and Governance Implications
Nil
|
That Council consents to development application DA 187/2020(1) for Mixed Use Development (community facility, entertainment facility, information and education facility, markets and other uses) at Lot 1 DP 257566 – 151 and 151A Byng Street; Lot 11 DP 706480 – 284 Lords Place; Lot Z DP 108472 - 282 Lords Place; Lots 7, 8, and 9 DP 820905 - 147-149 Byng Street, March Street, Peisley Street, and Byng Street; Lot 42 42 PCE C DP 841174 - 286-290 Lords Place; Lot 3 PCE PT and Lot 3 PCE PT SEC 43 DP 1064225 – 270‑276 Lords Place; Lots 100, 101 and 102 DP 1072260 – 135 Byng Street, 266 and 278‑280 Lords Place, and 142-148 March Street; and 270-276, 282, and 284 Lords Place pursuant to the conditions of consent in the attached Notice of Approval. |
further considerations
Consideration has been given to the recommendation’s impact on Council’s service delivery; image and reputation; political; environmental; health and safety; employees; stakeholders and project management; and no further implications or risks have been identified.
SUPPORTING INFORMATION
The proposal involves formalising a variety of uses within the Council’s Civic Centre Precinct, on land bordered by March, Byng and Peisley Streets, and Lords Place (see Figure 1). The land includes existing buildings and open space areas as discussed previously.
Proposed uses for the Civic Centre precinct (excluding the March Street buildings, which will be continued to be used for administration and community services) include the following range of proposed events and activities:
· Community and Entertainment - including, but not limited to; outdoor cinemas, concerts, performances, poetry readings, fundraising and awareness activities, information sessions, barbeques, Christmas parties and carols, cultural festivals, sporting activities, community events and festivals, days of significance (e.g. Sorry Day, R U OK Day etc.), event headquarters (centralised location of information for events such as food week), music and film events, firework displays, etc.
· Information and Education – including, but not limited to; exhibition openings and educational events such as art workshops, craft workshops, author readings, promotional exhibitions of art, produce, education and recreation, etc.
· Markets - including, but not limited to; local produce markets, community markets, festival markets, fundraising markets, etc.
· Recreation - including, but not limited to; sporting activities, ice skating, dancing, etc.
It is noted that many events can be categorised under more than one type of overarching use, such as a community fundraiser that involves markets, information displays, educational workshops, entertainment, and recreational activities all in the same event. The activity/event organiser can include Orange City Council, local or regional community groups, local businesses, not-for-profit organisations, and Government entities. As noted previously, all third parties need to enter into a user/hire agreement with Council to use the land.
Hours of operation, staffing, patron/attendance numbers, and parking requirements are all dependent on each event or activity. Generally Council has two different types of event categories: Category 1 involves small events such as a wedding ceremony, small school sports event, etc. that is not open to the public, and involves no more than 150 people or the selling of food/alcohol. Category 2 is for larger events such as festivals, markets and fundraisers that tend to have more than 150 people, are open to the public, sell food/alcohol, and may involve amusement rides, temporary structures etc. Specific events details are managed through Council’s events application and user/hire agreement process.
This application does not involve any changes to the existing buildings or layout of the land, and no works are proposed to be carried out.
MATTERS FOR CONSIDERATION
Section 1.7 - Application of Part 7 of the Biodiversity Conservation Act 2016 and Part 7A of the Fisheries Management Act 1994
Section 1.7 of the EP&A Act identifies that Part 7 of the Biodiversity Conservation Act 2016 (BC Act) and Part 7A of the Fisheries Management Act 1994 have effect in connection with terrestrial and aquatic environments.
There are four triggers known to insert a development into the Biodiversity Offset Scheme (i.e. the need for a BDAR to be submitted with a DA):
· Trigger 1: development occurs in land mapped on the Biodiversity Values Map (OEH) (clause 7.1 of BC Regulation 2017);
· Trigger 2: development involves clearing/disturbance of native vegetation above a certain area threshold (clauses 7.1 and 7.2 of BC Regulation 2017); or
· Trigger 3: development is otherwise likely to significantly affect threatened species (clauses 7.2 and 7.3 of BC Act 2016).
· Trigger 4: development proposed to occur in an Area of Outstanding Biodiversity Value (clause 7.2 of BC Act 2016). This is not applicable to Orange, as no such areas are known to occur in the area. As such, no further comments will be made against the fourth trigger.
In consideration of the above, the site is not within land mapped on the Biodiversity Values Map or LEP Terrestrial Biodiversity Map and is located in a highly disturbed area of the CBD; the proposal does not involve clearing or disturbance of vegetation; and overall is unlikely to significantly affect threatened species listed in the BC Act 2016. As such, a Biodiversity Development Assessment Report is not required in this instance.
Section 4.15
Section 4.15 of the Environmental Planning and Assessment Act 1979 requires Council to consider various matters, of which those pertaining to the application are listed below.
PROVISIONS OF ANY ENVIRONMENTAL PLANNING INSTRUMENT s4.15(1)(a)(i)
Orange Local Environmental Plan 2011
Part 1 - Preliminary
Clause 1.2 - Aims of Plan
The broad aims of the LEP are set out under Subclause 2. Those relevant to the application are as follows:
(a) to encourage development which complements and enhances the unique character of Orange as a major regional centre boasting a diverse economy and offering an attractive regional lifestyle,
(b) to provide for a range of development opportunities that contribute to the social, economic and environmental resources of Orange in a way that allows present and future generations to meet their needs by implementing the principles for ecologically sustainable development,
(f) to recognise and manage valued environmental heritage, landscape and scenic features of Orange.
The application is considered to be generally consistent with these objectives, as outlined in this report.
Clause 1.6 - Consent Authority
This clause establishes that, subject to the Act, Council is the consent authority for applications made under the LEP.
Clause 1.7 - Mapping
The subject site is identified on the LEP maps in the following manner:
|
Land Zoning Map: |
RE1 Public Recreation and B4 Mixed Use |
|
Lot Size Map: |
No Minimum Lot Size |
|
Heritage Map: |
Not a heritage item or conservation area |
|
Height of Buildings Map: |
Building height limits of 9m, 12m, and 16m |
|
Floor Space Ratio Map: |
Floor space limits of 0.75:1, 1:1, 1.5:1 and 2:1 |
|
Terrestrial Biodiversity Map: |
No biodiversity sensitivity on the site |
|
Groundwater Vulnerability Map: |
Groundwater vulnerable |
|
Drinking Water Catchment Map: |
Not within the drinking water catchment |
|
Watercourse Map: |
Partly sensitive waterway |
|
Urban Release Area Map: |
Not within an urban release area |
|
Obstacle Limitation Surface Map: |
No restriction on building siting or construction |
|
Additional Permitted Uses Map: |
No additional permitted use applies |
|
Flood Planning Map: |
Partly within a flood planning area |
Those matters that are of relevance are addressed in detail in the body of this report.
Clause 1.9A - Suspension of Covenants, Agreements and Instruments
This clause provides that covenants, agreements and other instruments which seek to restrict the carrying out of development do not apply with the following exceptions:
· a covenant imposed by the Council or that the Council requires to be imposed, or
· any relevant instrument under Section 13.4 of the Crown Land Management Act 2016, or
· any conservation agreement under the National Parks and Wildlife Act 1974, or
· any Trust agreement under the Nature Conservation Trust Act 2001, or
· any property vegetation plan under the Native Vegetation Act 2003, or
· any biobanking agreement under Part 7A of the Threatened Species Conservation Act 1995, or
· any planning agreement under Subdivision 2 of Division 7.1 of the Environmental Planning and Assessment Act 1979.
As noted previously, part of the subject site is owned by Crown Lands NSW. These four parcels of land have title notifications stating that the land is a ‘reserve’ under the historical Crown Lands Act 1989 (now the Crown Land Management Act 2016).
A Plan of Management (PoM) was prepared for the land in 2014, as required by the previous Act. Pursuant to the Acts, the reserves have gazetted purposes including ‘public buildings’, ‘public recreation’, ‘urban services’, and ‘tourist information centre’. The proposed uses are consistent with the gazetted uses and the current PoM, which is discussed in detail in the DCP assessment later in this report.
It is noted that Orange City Council is the Reserve Trust Manager for this land, and is acting as land owner for the purposes of this application, pursuant to Section 2.23 of the Crown Land Management Act 2016.
Part 2 - Permitted or Prohibited Development
Clause 2.1 - Land Use Zones and
The subject site is located within the RE1 Public Recreation and B4 Mixed Use zones (see Figure 2).

Figure 2 – extract of LEP Land Zoning Map
(Key: blue-grey = B4, green = RE1, red line = subject site)
Pursuant to the LEP, the various proposed uses are defined as follows:
community facility means a building or place:
(a) owned or controlled by a public authority or non-profit community organisation, and
(b) used for the physical, social, cultural or intellectual development or welfare of the community,
but does not include an educational establishment, hospital, retail premises, place of public worship or residential accommodation.
entertainment facility means a theatre, cinema, music hall, concert hall, dance hall and the like, but does not include a pub or registered club.
information and education facility means a building or place used for providing information or education to visitors, and the exhibition or display of items, and includes an art gallery, museum, library, visitor information centre and the like.
market means an open-air area, or an existing building, that is used for the purpose of selling, exposing or offering goods, merchandise or materials for sale by independent stall holders, and includes temporary structures and existing permanent structures used for that purpose on an intermittent or occasional basis.
recreation area means a place used for outdoor recreation that is normally open to the public, and includes:
(a) a children’s playground, or
(b) an area used for community sporting activities, or
(c) a public park, reserve or garden or the like,
and any ancillary buildings, but does not include a recreation facility (indoor), recreation facility (major) or recreation facility (outdoor).
recreation facility (major) means a building or place used for large-scale sporting or recreation activities that are attended by large numbers of people whether regularly or periodically, and includes theme parks, sports stadiums, showgrounds, racecourses and motor racing tracks.
recreation facility (outdoor) means a building or place (other than a recreation area) used predominantly for outdoor recreation, whether or not operated for the purposes of gain, including a golf course, golf driving range, mini-golf centre, tennis court, paint-ball centre, lawn bowling green, outdoor swimming pool, equestrian centre, skate board ramp, go-kart track, rifle range, water-ski centre or any other building or place of a like character used for outdoor recreation (including any ancillary buildings), but does not include an entertainment facility or a recreation facility (major).
It is noted that many of these uses already take place within their respective buildings, such as author readings in the library, art workshops in the gallery, and performances in the theatre. These activities already have consent to occur under their respective DAs, and this application seeks to extend these activities to the adjacent outdoor areas within the precinct, and to allow for other similar uses by the community and other related parties.
The proposed uses are permitted with consent in these zones, with the exception of the recreation uses, which are not permitted in the B4 zone. Events that fall within these definitions are only proposed to be carried out on the RE1 zoned land.
Some activities are not considered to fit within these definitions, such as local businesses promoting their retail sales, trades, etc. which are more of a commercial type of activity rather than any of the above or other permitted uses. Notwithstanding this, these types of uses can be carried out on a ‘temporary’ use basis pursuant to LEP Clause 2.8. Consent is sought for these temporary uses, as discussed in greater detail below.
Clause 2.3 - Zone Objectives and Land Use Table
Clause 2.3 of LEP 2011 references the Land Use Table and Objectives for each zone in LEP 2011. The objectives for land zoned RE1 and B4 are as follows:
Objectives of the B4 Mixed Use Zone
· To provide a mixture of compatible land uses.
· To integrate suitable business, office, residential, retail and other development in accessible locations so as to maximise public transport patronage and encourage walking and cycling.
· To promote, where possible, the retention and reuse of heritage items as well as the retention of established buildings that contribute positively to the heritage or cultural values of the land in the zone.
· To promote development that supports the role of Orange CBD as the primary retail and business centre in the region.
The proposal is not inconsistent with the objectives of the B4 zone. Most of the proposed uses will be carried out within the RE1 zone, where the B4 zone will be used ancillary to the events, such as for administration, access, car parking, amenities, etc.
Objectives of the RE1 Public Recreation Zone
· To enable land to be used for public open space or recreational purposes.
· To provide a range of recreational settings and activities and compatible land uses.
· To protect and enhance the natural environment for recreational purposes.
· To ensure development is ordered in such a way as to maximise public transport patronage and encourage walking and cycling in close proximity to settlement.
· To ensure development along the Southern Link Road has alternative access.
It is considered that the proposal is consistent with the objectives of the RE1 zone, allowing for a wide range of recreational and community uses of the land. The site is located on the edge of the CBD and near to public transport, and is not in the vicinity of the Southern Link Road.
Clause 2.8 - Temporary Use of Land
The proposal seeks to use the RE1 zoned parts of the site for the third party events that are not of a community or recreational nature, such as the promotion of local businesses (e.g. showcasing the food of a new restaurant, marketing local retail and trade businesses, celebrating the opening of a new store, etc.) which are considered commercial in nature, and are usually prohibited in the RE1 zone.
LEP Clause 2.8 enables Council to provide consent for the temporary use of land, provided it is satisfied that:
· the temporary use will not prejudice the subsequent development of the land in accordance with the LEP, and
· the temporary use will not adversely impact on any adjoining land or the amenity of the neighbourhood, and
· the temporary use and location of any structures involved will not adversely impact on environmental attributes or features, or increase the risk of natural hazards affecting the land, and
· that at the end of the temporary use period, the land will as far as practicable, be restored to the condition it was previously in.
Furthermore, the Clause states that temporary uses must be limited to no more than 52 days (whether or not consecutive) in any twelve month period.
It is considered that these types of temporary events can be undertaken without detriment to the neighbourhood, adjoining lands, environmental attributes, features and values of the land, and will not elevate the risk of natural hazards in the area. Furthermore, the proposed temporary uses will not compromise future development of the land. The applicant has committed to limiting these types of uses to no more than 52 days over a total period of twelve months. It is noted that these temporary events need to fit in with the booked schedule of events that take place on the land, whether they be regular annual events such as Cancer Council fundraising, Banjo Patterson Festival, Food Week, etc. or one-off ad-hoc events. As such, these commercial type of events are likely to happen only a few times a year. These uses are also subject to the Council’s event application process and conditions, which requires the land to be restored to its current condition upon cessation of the temporary use, in accordance with this clause.
Overall, it is considered that these temporary events are considered acceptable, subject to further case-by-case scrutiny during Council’s events application process, and compliance with the user/hire agreement terms and conditions. An operational condition of consent is recommended to this effect.
Part 3 - Exempt and Complying Development
The application is not exempt or complying development. As noted previously, structures and infrastructure that does not meet the exempt development provisions will require a separate DA. An Advisory Note is recommended to this effect.
Part 4 - Principal Development Standards
Clause 4.3 - Height of Buildings
This clause limits the height of buildings (HoB) on land identified on the Height of Buildings Map. The subject land is identified on the Map as having various height limits, being 9m, 12m, and 16m. No changes are proposed to the heights of existing buildings, and no new structures are proposed as part of this application.
Clause 4.4 - Floor Space Ratio
This clause limits the floor space ratio (FSR) permitted on land identified on the Floor Space Ratio Map. The subject land is identified on the Map as having various FSRs of 0.75:1, 1:1, 1.5:1 and 2:1. No changes to floor areas of existing buildings are proposed, and no additional floor area is proposed.
Part 5 - Miscellaneous Provisions
5.10 - Heritage Conservation
Cause 5.10 applies to the subject proposal as the land is located opposite a heritage conservation area and local heritage listed items. Clause 5.10 states in part:
(1) Objectives
The objectives of this clause are as follows:
(a) to conserve the environmental heritage of Orange,
(b) to conserve the heritage significance of heritage items and heritage conservation areas, including associated fabric, settings and views,
(c) to conserve archaeological sites,
(d) to conserve Aboriginal objects and Aboriginal places of heritage significance.
(4) Effect of Proposed Development on Heritage Significance
The consent authority must, before granting consent under this clause in respect of a heritage item or heritage conservation area, consider the effect of the proposed development on the heritage significance of the item or area concerned. This subclause applies regardless of whether a heritage management document is prepared under Subclause (5) or a heritage conservation management plan is submitted under Subclause (6).
The proposal does not involve any alterations to the existing buildings or site, other than temporary use of land, which must be returned to its former state after use, as discussed previously. As there are no changes to the fabric of the building or the site, it is considered that the proposal will have negligible impact on the immediate or wider heritage setting.
Part 6 - Urban Release Area
Not relevant to the application. The subject site is not located in an Urban Release Area.
Part 7 - Additional Local Provisions
7.2 - Flood Planning
This clause applies to land identified on the Flood Planning Map as a Flood Planning Area and requires that, before any consent is issued, Council must be satisfied that the proposal:
(a) is compatible with the flood hazard of the land, and
(b) is not likely to significantly adversely affect flood behaviour resulting in detrimental increases in the potential flood affectation of other development or properties, and
(c) incorporates appropriate measures to manage risk to life from flood, and
(d) is not likely to significantly adversely affect the environment or cause avoidable erosion, siltation, destruction of riparian vegetation or a reduction in the stability of river banks or watercourses, and
(e) is not likely to result in unsustainable social and economic costs to the community as a consequence of flooding.
Part of the site is identified as flood affected on the LEP Flood Planning Map. As the proposal involves temporary use of the land for events and no physical works or changes to the site are proposed, flooding regimes on or off the site are unlikely to be changed as a result of this application, and stormwater run-off from the site will remain unchanged. Likewise, the proposal is unlikely to cause or contribute to erosion, siltation, or reduce riparian vegetation, and is therefore unlikely to create a cost burden on the community or neighbours.
Council’s Development Engineer recommends a condition of consent for events applicants/organisers to undertake a flood risk assessment prior to each event to comply with the Blackmans Swamp Creek Floodplain Risk Management Plan, including having procedures in place to ensure that there is no increase in the risk of loss of life, no increase in flood affectation on adjoining development or properties likely to occur on the floodplain; and reliable access is available for the evacuation from the area.
Overall, the proposal is consistent with LEP Clause 7.2.
7.5 - Riparian Land and Watercourses
This clause seeks to preserve both water quality and riparian ecological health. The clause applies to land identified as a “Sensitive Waterway” on the Watercourse Map, and Council must consider whether or not the proposal:
(a) is likely to have any adverse impact on the following:
(i) the water quality and flows within a watercourse
(ii) aquatic and riparian species, habitats and ecosystems of the watercourse
(iii) the stability of the bed and banks of the watercourse
(iv) the free passage of fish and other aquatic organisms within or along the watercourse
(v) any future rehabilitation of the watercourse and its riparian areas, and
(b) is likely to increase water extraction from the watercourse.
Additionally, consent may not be granted until Council is satisfied that:
(a) the development is designed, sited and will be managed to avoid any significant adverse environmental impact, or
(b) if that impact cannot be reasonably avoided - the development is designed, sited and will be managed to minimise that impact, or
(c) if that impact cannot be minimised - the development will be managed to mitigate that impact.
Part of the subject site contains a sensitive waterway, being Blackmans Swamp Creek. This waterway runs underground, beneath the site, and as such the proposal is unlikely to impact on its flow, stability, free passage of species, or future rehabilitation, nor involve any water extraction. As the proposal does not involve any works, run off from the site will remain unchanged.
While there will always remain a risk to the waterway under extreme circumstances such as record storms and the like, it is considered that the risk of adverse impact can be appropriately managed to an acceptable level of risk. Overall, the proposal is consistent with LEP Clause 7.5.
7.6 - Groundwater Vulnerability
The subject land is identified as Groundwater Vulnerable on the Groundwater Vulnerability Map, and as such, LEP Clause 7.6 applies. This clause states in part:
(3) Before determining a development application for development on land to which this clause applies, the consent authority must consider:
(a) whether or not the development (including any onsite storage or disposal of solid or liquid waste and chemicals) is likely to cause any groundwater contamination or have any adverse effect on groundwater dependent ecosystems, and
(b) the cumulative impact (including the impact on nearby groundwater extraction for potable water supply or stock water supply) of the development and any other existing development on groundwater.
In consideration of Clause 7.6, there are no aspects of the proposed development that will impact on groundwater and related ecosystems.
Clause 7.11 - Essential Services
Clause 7.11 applies and states:
Development consent must not be granted to development unless the consent authority is satisfied that any of the following services that are essential for the proposed development are available or that adequate arrangements have been made to make them available when required:
(a) the supply of water,
(b) the supply of electricity,
(c) the disposal and management of sewage,
(d) storm water drainage or onsite conservation,
(e) suitable road access.
In consideration of this clause, all utility services are available to the land and adequate for the proposal. No changes are proposed to existing services, access arrangements etc. Overall the proposal is consistent with LEP Clause 7.11.
STATE ENVIRONMENTAL PLANNING POLICIES
State Environmental Planning Policy 55 - Remediation of Land
State Environmental Planning Policy 55 - Remediation of Land (SEPP 55) is applicable. Pursuant to Clause 7 Contamination and remediation to be considered in determining development application:
(1) A consent authority must not consent to the carrying out of any development on land unless:
(a) it has considered whether the land is contaminated, and
(b) if the land is contaminated, it is satisfied that the land is suitable in its contaminated state (or will be suitable, after remediation) for the purpose for which the development is proposed to be carried out, and
(c) if the land requires remediation to be made suitable for the purpose for which the development is proposed to be carried out, it is satisfied that the land will be remediated before the land is used for that purpose.
The subject land has longstanding use for public buildings, and community and recreational purposes. There is some known levels of contamination on the site from previous uses of the site. Testing of this land has confirmed that the continued use of the land for events and public activities is permissible as the event activities do not include any earthworks or excavation. The land is considered to be suitable in its current state for the proposed development, pursuant to Clause 7 of SEPP 55.
PROVISIONS OF ANY DRAFT ENVIRONMENTAL PLANNING INSTRUMENT THAT HAS BEEN PLACED ON EXHIBITION 4.15(1)(a)(ii)
Draft Orange Local Environmental Plan 2011 (Amendment 24)
Draft Orange LEP 2011 Amendment 24 has recently completed public exhibition. The Draft Plan involves various administration amendments to the LEP including updated maps; and new and amended clauses. Relevantly, Amendment 24 contains amendments to flood planning controls to reflect updated flood data pursuant to Council’s Floodplain Risk Management Study and Plan 2017.
The subject land is partially affected by flooding, which has been discussed in detail in the above LEP Clause 7.2 assessment. The proposed development will not be adverse to this part of Amendment 24.
Draft Remediation of Land State Environmental Planning Policy
The Draft Remediation of Land SEPP is applicable, and requires in part that consideration be given to potential contamination on nearby or neighbouring properties and groundwater. It is considered that the contamination status of adjoining residential and commercial lands will not impact on the proposed development.
DESIGNATED DEVELOPMENT
The proposed development is not designated development.
INTEGRATED DEVELOPMENT
The proposed development is not integrated development.
PROVISIONS OF ANY DEVELOPMENT CONTROL PLAN s4.15(1)(a)(iii)
Development Control Plan 2004
The following chapters of the Orange Development Control Plan 2004 (DCP) are applicable to the proposed development:
· Chapter 2 - Natural Resource Management
· Chapter 3 - General Considerations
· Chapter 4 - Special Environmental Considerations
· Chapter - Land Used for Open Space and Recreation
The relevant matters in Parts 2, 3, and 4 were considered in the foregoing LEP assessment. The controls at Chapter 11 relate to the RE1 zoning of the land, and are considered below. It is noted that while DCP Chapter 8 applies to the B4 zoning of the land, the proposed temporary uses and events will not be carried out directly on this part of the land, and as such, the provisions of Chapter 8 are not relevant to this application.
Chapter 11 - Land Used for Open Space and Recreation
Chapter 11 of the DCP prescribes the following Planning Outcome for the RE1 zoned land:
· Land is used in accordance with the relevant adopted plan of management.
As noted previously, the RE1 part of the site is Crown Reserve land under the Crown Land Management Act 2016, and Orange City Council is the designated Trust Manager for the whole of the reserve. The site is subject to the ‘Orange Civic Precinct Plan of Management’ (March, 2014) (PoM), which was prepared under the previous Crown Lands Act 1989.
The revised Act requires a new PoM to be prepared for the reserves, which is currently being drafted by Council. In the interim, the current PoM applies to this application. It is noted that the PoM contains references to historical legislation and policies that have been amended, repealed, or replaced since its preparation, including minor changes to the zoning of the land, which has been taken into account in the following assessment.
Orange Civic Precinct Plan of Management (Lantz Marshall) (March, 2014)
1.4. The Orange Civic Precinct Plan of Management Vision
The proposal is considered to be wholly consistent with the vision of the PoM, which is:
“to guarantee that Orange Civic Precinct remains as community space for the use of the public in a diverse range of roles – open space, recreation, cultural, educational, tourism.”
2.6 Leases and Licences
The PoM sets out that there are no existing leases or licences applying specifically to the Civic Precinct, and that temporary hire agreements can be issued to parties or organisations, subject to hirer conditions. This proposal is consistent with the examples of users and activities set out in the PoM (e.g. Farmers Markets, FOOD week, NAIDOC Week, Carols by Candlelight, etc). The conditions for using the land are set out in the appendices of the PoM, and are included in each individual user/hire agreement.
3.2.2 Crown Lands Act 1989 - Purposes for which the reserve can be used
The notification of reservation sets out the purposes for which that reserve may be used, and a reserve's use needs to be consistent with/or supporting the purposes stated in the reservation. Where possible, multiple uses of reserves are encouraged, where those uses are consistent with the purpose of the reserve.
As noted previously, the reserves have gazetted purposes including ‘public buildings’, ‘public recreation’, ‘urban services’, and ‘tourist information centre’. It is considered that the proposed uses are generally consistent with or support the gazetted purposes, most of which fall within the ‘public recreation’ use. The proposal encourages multiple uses of the land to benefit the community, which is consistent with the PoM.
4. Planning and management for the future
The PoM derives planning and management of the reserves from four sources: Community Values, Site Analysis, Identified future works, and Opportunities and Constraints. The proposal is considered to be consistent with these outcomes. It is noted that many of the future works have already been carried out on the site, such as the construction of the Orange Regional Museum, and the proposal is consistent with these projects. The proposal will also complement other upcoming projects including an extension to the art gallery building, and the new Conservatorium-Planetarium building. As noted previously, these future projects may limit the capacity of future events set out in this application (number of patrons, placement of temporary structures, access arrangements, etc.), however this does not affect the assessment of this subject proposal, nor the granting of consent.
6.3 Future use and development
The PoM states that activities and development must comply with the Crown Lands Act 1989 (now historical), the requirements for a lease or licence if appropriate, with the public purpose for the reserve, may require approval under the LEP, and are subject to Landowners Consent pursuant to the relevant Acts. This application is applying for consent to use the land in a manner that is consistent with the PoM, relevant Acts, and the LEP, as discussed in the foregoing assessments. As noted previously, Council’s events applications process will ensure that each event/use is assessed on a case-by-case basis, to ensure it is a suitable use of the land, as well as giving landowners consent to carry out the temporary activity on the reserve.
Overall the proposal is consistent with the PoM as required by Chapter 11 of the DCP.
PROVISIONS PRESCRIBED BY THE REGULATIONS s4.15(1)(a)(iv)
The proposed development is not contrary to any matters prescribed by the Regulations.
THE LIKELY IMPACTS OF THE DEVELOPMENT s4.15(1)(b)
Visual Impacts
Visual impacts for the site will be temporary during the events, after which the land will be returned to its former condition. Although this is a condition of the user/hire agreement, it is recommended this also forms a condition of development consent. Overall, adverse visual impacts are considered unlikely.
Traffic Impacts
For the most part, the proposed events will have negligible traffic impacts for the site and setting. The proposal will not alter existing site accesses or onsite vehicle or parking areas; and will have imperceptible impacts on traffic generation and network capacity. While large scale events will result in a noticeable increase in traffic movements and overspill parking from the site into surrounding streets, these events do not occur frequently, and they serve the wider community (e.g. monthly Farmers Market, the Council’s annual Christmas Carols event). The Category 2 events application process requires a Traffic Management Plan and Traffic Control Plan to be submitted for approval by the City of Orange Traffic Committee, which must be adhered to during the event. A condition of consent is also recommended by Council’s Development Engineer to this effect.
It is noted that Council’s Future City project involves a review of car parking in the immediate surrounds and wider CBD, and it is likely that changes and improvements in parking arrangements will be carried out in the near future to benefit the ongoing use of the Civic Centre precinct, as well as the CBD. Overall, adverse traffic and parking impacts are considered unlikely.
Residential Amenity
The proposed development seeks to formalise uses and activities that, for the most part, already take place on the land. Most events are small in scale, and only run for a short time period, therefore are unlikely to adversely affect nearby residential properties. While large events have the potential to generate noise impacts, Council’s hire/user agreement sets out conditions in relation to noise, amplified music/PA system, etc. Overall, these events are infrequent and benefit the local and wider community.
Impacts on Public Recreation
The proposal is ancillary to the existing uses, functions, and operation of the land, and will complement and improve the site. The PoM encourages a wide range of recreational and community activities on the land, and the proposal is consistent with its vision, aims, objectives, etc. as discussed in the main body of this report. The proposal will not adversely impact on the potential future use of the land, nor the upcoming future projects intended for the site, also discussed previously.
Environmental Impacts
Adverse environmental impacts are not anticipated as a result of the proposal. As discussed in the LEP assessment section of this report, adverse impacts to flooding, the underground waterway, and groundwater are unlikely.
THE SUITABILITY OF THE SITE s4.15(1)(c)
The subject land is considered to be suitable for the proposed development due to the following:
· The proposal is for permitted uses in the B4 and RE1 Zones, with the exception of a few temporary events that are commercial in nature and permitted via the LEP temporary use provisions;
· The proposed development is complementary and ancillary to the longstanding and developing use of the land for public buildings, public recreation, and community use, and is consistent with the gazetted reserves uses and Plan of Management for the land;
· The proposal is unlikely to adversely affect the site in regards to flood planning, waterway sensitivity, or groundwater vulnerability; and
· The use of the land is temporary in nature, where the land can be restored to its former condition following the event.
ANY SUBMISSIONS MADE IN ACCORDANCE WITH THE ACT s4.15(1)(d)
The proposed development is not defined as "advertised development" under the provisions of the Orange Community Participation Plan 2019 (CPP), however the proposed temporary uses of the land are required to be neighbour notified pursuant to the CPP. The application was exhibited for the prescribed period of 14 days, and at the end of that period no submissions were received.
PUBLIC INTEREST s4.15(1)(e)
The proposed development is considered to be of minor interest to the wider public due to the community use of the land, and relatively localised nature of potential impacts. The proposal is not inconsistent with any relevant policy statements, planning studies, guidelines, etc. that have not been considered in this assessment.
SUMMARY
The proposed development is permissible with the consent of Council. The proposed development complies with the relevant aims, objectives and provisions of Orange LEP 2011 (as amended) and DCP 2004. A Section 4.15 assessment of the development indicates that the development is acceptable in this instance. Attached is a draft Notice of Approval outlining a range of conditions considered appropriate to ensure that the development proceeds in an acceptable manner.
COMMENTS
The requirements of the Environmental Health and Building Surveyor and the Engineering Development Section are included in the attached Notice of Approval.
1 Notice of Approval, D20/51471⇩
2 Plans, D20/36690⇩
Attachment 1 Notice of Approval
|
|
ORANGE CITY COUNCIL
Development Application No DA 187/2020(1)
NA20/ Container PR9697 |
NOTICE OF DETERMINATION
OF A DEVELOPMENT APPLICATION
issued under the Environmental Planning and Assessment Act 1979
Section 4.18
|
Development Application |
|
|
Applicant Name: |
Orange City Council |
|
Applicant Address: |
PO Box 35 ORANGE NSW 2800 |
|
Owner’s Name: |
Orange City Council |
|
Land to Be Developed: |
Lot 1 DP 257566 – 151 and 151A Byng Street; Lot 11 DP 706480 – 284 Lords Place; Lot Z DP 108472 – 282 Lords Place; Lots 7, 8, and 9 DP 820905 - 147-149 Byng Street, March Street, Peisley Street, and Byng Street; Lot 42 PCE C DP 841174 - 286-290 Lords Place; Lot 3 PCE PT and Lot 3 PCE PT Sec 43 DP 1064225 – 270-276 Lords Place; Lots 100, 101 and 102 DP 1072260 - 135 Byng Street, 266 and 278-280 Lords Place, and 142-148 March Street; and 270-276, 282, and 284 Lords Place |
|
Proposed Development: |
Mixed Use Development (community facility, entertainment facility, information and education facility, markets and other uses) |
|
|
|
|
Building Code of Australia building classification: |
Not applicable |
|
|
|
|
Determination made under Section 4.16 |
|
|
Made On: |
1 September 2020 |
|
Determination: |
CONSENT GRANTED SUBJECT TO CONDITIONS DESCRIBED BELOW: |
|
|
|
|
Consent to Operate From: |
2 September 2020 |
|
Consent to Lapse On: |
2 September 2025 |
Terms of Approval
The reasons for the imposition of conditions are:
(1) To maintain neighbourhood amenity and character.
(2) To ensure compliance with relevant statutory requirements.
(3) To provide adequate public health and safety measures.
(4) To minimise the impact of development on the environment.
|
|
|
Conditions
(1) The development must be carried out in accordance with:
(a) Plans numbered: Site Plan 1, prepared by Orange City Council, reference D20/26473 (1 sheet)
(b) statements of environmental effects or other similar associated documents that form part of the approval
as amended in accordance with any conditions of this consent.
|
PRESCRIBED CONDITIONS |
(2) All building work must be carried out in accordance with the provisions of the Building Code of Australia.
|
PRIOR TO ANY EVENT COMMENCING |
(3) Prior to any event, the event’s organiser shall prepare and submit an Events Application to Council. The event shall be carried out in accordance with the approved agreement.
(4) Prior to an event commencing, adequate sanitary facilities must be in place to accommodate the number of persons attending.
(5) Any proposed changes to traffic arrangements for an event shall be approved by Orange City Council. The events applicant/organiser shall submit a Traffic Management Plan and Traffic Control Plan to Orange City Council and obtain approval prior to setting up any event (see Events Form for further information). The approved Traffic Management Plan and Traffic Control Plan shall be implemented in accordance with the issued approval.
(6) Prior to any event taking place within the area of the Flood Planning Level the events applicant/organiser shall undertake a flood risk assessment of the event in order to comply with the Blackmans Swamp Creek Floodplain Risk Management Plan. The assessment shall ensure there are procedures in place to ensure that:
- there is no increase in the risk of loss of life; and
- no increase in flood affectation on adjoining development or properties likely to occur on the floodplain; and
- reliable access is available for the evacuation from the area.
|
DURING SITEWORKS |
(7) Any adjustments to existing utility services that are made necessary by this development proceeding are to be at the full cost of the developer.
(8) All of the foregoing conditions are to be at the full cost of the developer and to the requirements and standards of the Orange City Council Development and Subdivision Code, unless specifically stated otherwise. All work required by the foregoing conditions is to be completed prior to the issuing of an Occupation Certificate, unless stated otherwise.
|
MATTERS FOR THE ONGOING PERFORMANCE AND OPERATION OF THE DEVELOPMENT |
(9) Any outdoor lighting shall be in accordance with the Australian Standard 4282-1997 Control of the obtrusive effects of outdoor lighting.
(10) The recreational uses hereby approved can only be carried out on the RE1 zoned parts of the subject site. Ancillary aspects of such events (e.g. administration, car parking, etc.) may be carried out on the B4 zoned parts of the subject site.
(11) Events shall be carried out in accordance with all other relevant approvals, including but not limited to Council’s user/hire agreement for the event, Traffic Management Plan, Traffic Control Plan, Liquor Licence, Section 68 approval, Food Permit, Suspension of Alcohol Free Zone, etc.
(12) Temporary events (i.e. those that do not fit within the definitions of ‘community facility’, ‘entertainment facility’, ‘information and education facility’, ‘markets’, and ‘recreation’ uses) are limited to a maximum of 52 days in any 12 month period.
ADVISORY NOTES
(1) This consent does not approve the erection of any structures and the likes, which must comply with the relevant exempt provisions of State Environmental Planning Policy (Exempt and Complying Development Codes) 2008, or separate development consent is required.
|
|
|
Other Approvals
(1) Local Government Act 1993 approvals granted under Section 68.
Nil
(2) General terms of other approvals integrated as part of this consent.
Nil
|
|
|
Right of Appeal
If you are dissatisfied with this decision, Section 8.7 of the Environmental Planning and Assessment Act 1979 gives you the right to appeal to the Land and Environment Court. Pursuant to Section 8.10, an applicant may only appeal within 6 months after the date the decision is notified.
|
Disability Discrimination Act 1992: |
This application has been assessed in accordance with the Environmental Planning and Assessment Act 1979. No guarantee is given that the proposal complies with the Disability Discrimination Act 1992. The applicant/owner is responsible to ensure compliance with this and other anti-discrimination legislation. The Disability Discrimination Act covers disabilities not catered for in the minimum standards called up in the Building Code of Australia which references AS1428.1 - "Design for Access and Mobility". AS1428 Parts 2, 3 and 4 provides the most comprehensive technical guidance under the Disability Discrimination Act currently available in Australia. |
|
|
|
|
Disclaimer - S88B of the Conveyancing Act 1919 - Restrictions on the Use of Land: |
The applicant should note that there could be covenants in favour of persons other than Council restricting what may be built or done upon the subject land. The applicant is advised to check the position before commencing any work. |
|
|
|
|
Signed: |
On behalf of the consent authority ORANGE CITY COUNCIL |
|
Signature: |
|
|
Name: |
PAUL JOHNSTON - MANAGER DEVELOPMENT ASSESSMENTS |
|
Date: |
2 September 2020 |
RECORD NUMBER: 2020/1457
AUTHOR: Rishelle Kent, Senior Planner
EXECUTIVE Summary
|
Application lodged – Section 8.2A Review of Determination |
17 June 2020 |
|
Applicant/s |
Mr TM and Mrs CJ Cranfield |
|
Owner/s |
Mr TM and Mrs CJ Cranfield |
|
Land description |
Lot 3 DP 1112473, Lot A DP 334156 -78 Forbes Road, Orange |
|
Proposed land use |
Demolition (dwelling and tree removal) and Subdivision (four lot Torrens title and three lot Community title) |
|
Value of proposed development |
$150,000 |
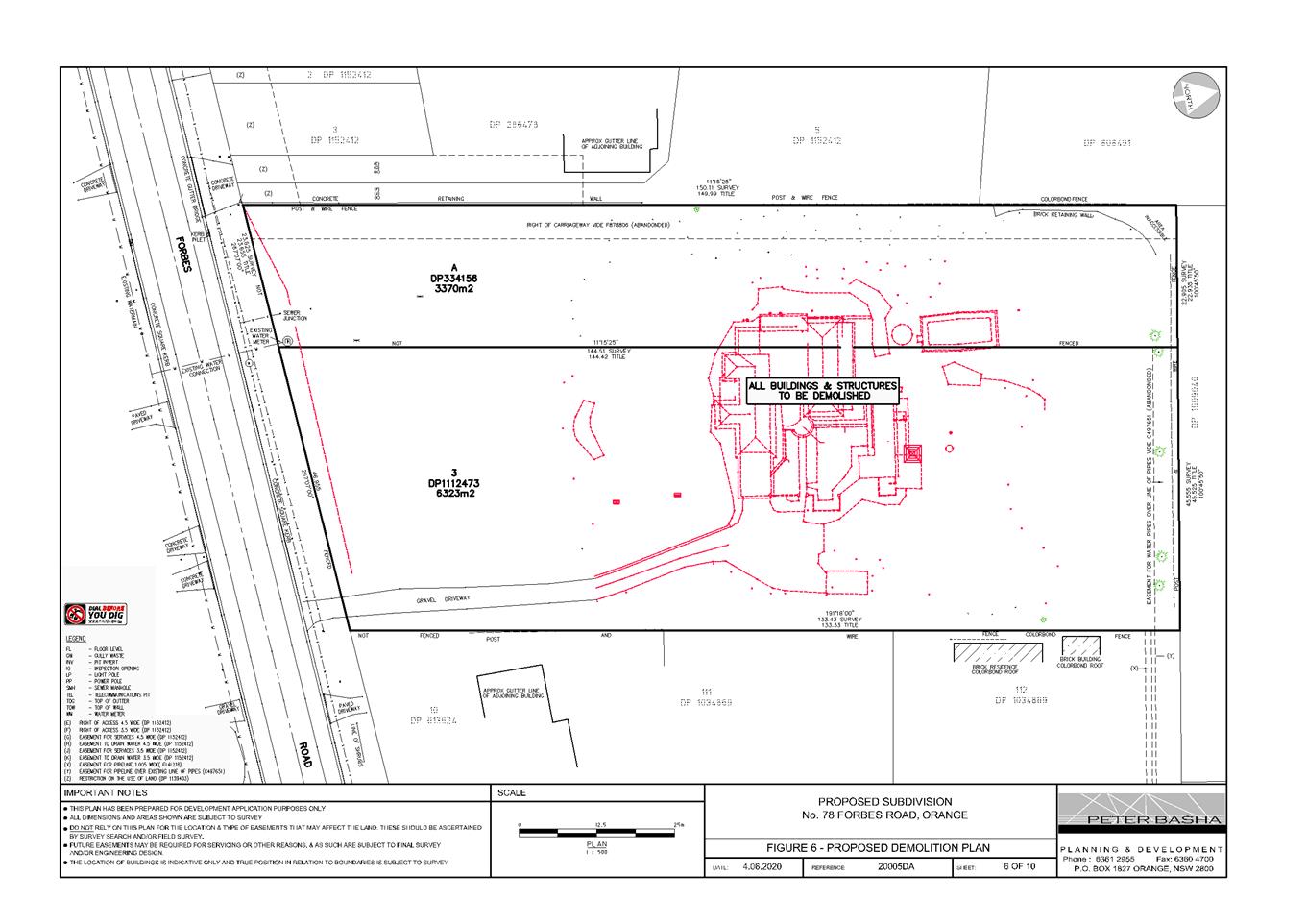
Council's consent is sought for Demolition (dwelling and tree removal) and Subdivision (four lot Torrens title and three lot Community title) at 78 Forbes Road, Orange.
The proposal involves demolition of the existing dwelling, pool and ancillary structures, and removal of trees as identified on the plan. Twenty four trees will be retained upon the site.
It is further proposed to carry out a four lot Torrens title subdivision of the development lot, followed by a three lot Community title subdivision of the middle allotment (Lot 104), resulting in five residential allotments.
The proposal comprises advertised development in accordance with Council’s Community Participation Plan 2019 (public interest). Public and written notice of the application was given. Two submissions have been received, concerned with the removal of trees and the resulting lack of privacy.
As outlined in this report, the proposed development is considered to reasonably satisfy the Local and State planning controls that apply to the subject land and particular land use. Impacts of the development will be within acceptable limit, subject to mitigation conditions. Approval of the application is recommended.

Figure 1 - locality plan
DECISION FRAMEWORK
Development in Orange is governed by two key documents Orange Local Environment Plan 2011 and Orange Development Control Plan 2004.
Orange Local Environment Plan 2011 – The provisions of the LEP must be considered by the Council in determining the application. LEPs govern the types of development that are permissible or prohibited in different parts of the City and also provide some assessment criteria in specific circumstances. Uses are either permissible or not. The objectives of each zoning and indeed the aims of the LEP itself are also to be considered and can be used to guide decision making around appropriateness of development.
Orange Development Control Plan 2004 – the DCP provides guidelines for development. In general it is a performance based document rather than prescriptive in nature. For each planning element there are often guidelines used. These guidelines indicate ways of achieving the planning outcomes. It is thus recognised that there may also be other solutions of merit. All design solutions are considered on merit by planning and building staff. Applications should clearly demonstrate how the planning outcomes are being met where alternative design solutions are proposed. The DCP enables developers and architects to use design to achieve the planning outcomes in alternative ways.
DIRECTOR’S COMMENT
The proposal involves demolition of the existing dwelling, pool and ancillary structures, removal of trees as identified on the plan and the subsequent 5 lot residential subdivision of the land. Twenty four trees are proposed to be retained upon the site following the completion of the development. Key issues addressed in the planning report relate to tree removal/tree protection in order to facilitate the subdivision, neighbourhood character and access. The proposed subdivision has been designed in a manner to fit the character of the surrounding area. Council’s Senior Planner and City Presentations Manager have worked closely with the applicant in an attempt to retain as many of the more significant trees on the site. The attached recommended Notice of Determination includes conditions that require the protection of certain identified trees during and after the proposed subdivision of the land. It is recommended that Council supports the subject development.
Link To Delivery/OPerational Plan
The recommendation in this report relates to the Delivery/Operational Plan strategy “10.1 Preserve - Engage with the community to ensure plans for growth and development are respectful of our heritage”.
Financial Implications
Nil
Policy and Governance Implications
Nil
|
That Council consents to development application DA 221/2020(1) for Demolition (dwelling and tree removal) and Subdivision (four lot Torrens title and three lot Community title) at Lot 3 DP 1112473, Lot A DP 334156 - 78 Forbes Road, Orange pursuant to the conditions of consent in the attached Notice of Approval. |
further considerations
Consideration has been given to the recommendation’s impact on Council’s service delivery; image and reputation; political; environmental; health and safety; employees; stakeholders and project management; and no further implications or risks have been identified.
SUPPORTING INFORMATION
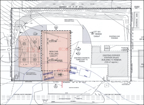
Council's consent is sought to subdivide the land to create five residential allotments. Stage 1 involves demolition of the dwelling and ancillary structures, removal of vegetation (excepting the 24 trees as shown below), and carrying out a four lot Torrens title subdivision. Stage 2 will consist of a three lot Community title subdivision of Lot 104.
The residential allotments will vary at 1019m², 1054m², 1044m², 1224m² and 4885m² in size, with an access handle of 467m² along the western boundary (refer to Figure 2 below).
Access will be provided to the site from Forbes Road via a Community Title access along the western boundary serving Lots 101, 2 and 3, the existing gravel driveway along the eastern boundary serving Lot 103 and direct access to Forbes Road for Lot 102.

Figure 2 - locality plan
MATTERS FOR CONSIDERATION
Section 1.7 - Application of Part 7 of the Biodiversity Conservation Act 2016 and Part 7A of the Fisheries Management Act 1994
Pursuant to Clause 1.7:
This Act has effect subject to the provisions of Part 7 of the Biodiversity Conservation Act 2016 and Part 7A of the Fisheries Management Act 1994 that relate to the operation of this Act in connection with the terrestrial and aquatic environment.
In consideration of this section, the proposed development is not likely to significantly affect a threatened species:
· The subject and adjoining lands are not identified as biodiversity sensitive on the Orange LEP 2011 Terrestrial Biodiversity Map.
· The proposal does not involve clearing or disturbance of native vegetation; clearing thresholds prescribed by regulation do not apply.
· The site is contained within an established urban area and has been highly modified by the urban landuse pattern. The subject land does not contain known threatened species or ecological communities.
Based on the foregoing consideration, a Biodiversity Assessment Report is not required and the proposal suitably satisfies the relevant matters at Clause 1.7.
Section 4.15
Section 4.15 of the Environmental Planning and Assessment Act 1979 requires Council to consider various matters, of which those pertaining to the application are listed below.
PROVISIONS OF ANY ENVIRONMENTAL PLANNING INSTRUMENT s4.15(1)(a)(i)
Orange Local Environmental Plan 2011
Clause 1.2 - Aims of Plan
The particular aims of the LEP relevant to the proposal include:
(a) to encourage development which complements and enhances the unique character of Orange as a major regional centre boasting a diverse economy and offering an attractive regional lifestyle,
(b) to provide for a range of development opportunities that contribute to the social, economic and environmental resources of Orange in a way that allows present and future generations to meet their needs by implementing the principles for ecologically sustainable development,
(e) to provide a range of housing choices in planned urban and rural locations to meet population growth,
(f) to recognise and manage valued environmental heritage, landscape and scenic features of Orange.
The proposed development is considered to be consistent with the above listed aims, as outlined in the following sections of this report.
Clause 1.6 - Consent Authority
This clause establishes that, subject to the Act, Council is the consent authority for applications made under the LEP.
Clause 1.7 - Mapping
The subject site is identified on the LEP maps in the following manner:
|
Land Zoning Map: |
Land zoned R1 General Residential |
|
Lot Size Map: |
No Minimum Lot Size |
|
Heritage Map: |
Not a heritage item or conservation area |
|
Height of Buildings Map: |
No building height limit |
|
Floor Space Ratio Map: |
No floor space limit |
|
Terrestrial Biodiversity Map: |
No biodiversity sensitivity on the site |
|
Groundwater Vulnerability Map: |
Groundwater vulnerable |
|
Drinking Water Catchment Map: |
Not within the drinking water catchment |
|
Watercourse Map: |
Not within or affecting a defined watercourse |
|
Urban Release Area Map: |
Not within an urban release area |
|
Obstacle Limitation Surface Map: |
No restriction on building siting or construction |
|
Additional Permitted Uses Map: |
No additional permitted use applies |
|
Flood Planning Map: |
Not within a flood planning area |
Those matters that are of relevance are addressed in detail in the body of this report.
Clause 1.9A - Suspension of Covenants, Agreements and Instruments
This clause provides that covenants, agreements and other instruments which seek to restrict the carrying out of development do not apply with the following exceptions.
(a) to a covenant imposed by the Council or that the Council requires to be imposed, or
(b) to any relevant instrument under Section 13.4 of the Crown Land Management Act 2016, or
(c) to any conservation agreement under the National Parks and Wildlife Act 1974, or
(d) to any Trust agreement under the Nature Conservation Trust Act 2001, or
(e) to any property vegetation plan under the Native Vegetation Act 2003, or
(f) to any biobanking agreement under Part 7A of the Threatened Species Conservation Act 1995, or
(g) to any planning agreement under Subdivision 2 of Division 7.1 of the Environmental Planning and Assessment Act 1979.
Council staff are not aware of the title of the subject property being affected by any of the above.
Part 2 - Permitted or Prohibited Development
Clause 2.1 Land Use Zones
The subject land is zoned R1 General Residential.
The proposed development is defined as “subdivision of land” and “demolition”.
The proposal is permitted with consent in the R1 General Residential zone.
Clause 2.3 Zone Objectives and Landuse Table
The objectives of the R1 General Residential zone are:
· To provide for the housing needs of the community.
· To provide for a variety of housing types and densities.
· To enable other land uses that provide facilities or services to meet the day to day needs of residents.
· To ensure development is ordered in such a way as to maximise public transport patronage and encourage walking and cycling in close proximity to settlement.
· To ensure that development along the Southern Link Road has an alternative access.
The proposal will be consistent with the relevant R1 zone objectives:
- the proposed development will in future provide additional housing stock to accommodate the housing needs of the community
- the development will contribute to the variety of housing types and densities, and complement the developed subdivision pattern
- the proposal involves residential land use only
- the area is serviced by public transport
- the site does not have frontage or access to the Southern Link Road.
Clause 2.6 Subdivision - Consent Requirements
Clause 2.6 is applicable and states:
(1) Land to which this Plan applies may be subdivided but only with development consent.
Consent is sought for subdivision in accordance with this clause.
Clause 2.7 - Demolition Requires Development Consent
This clause triggers the need for development consent in relation to a building or work.
The proposal involves demolition and the applicant is seeking the consent of council. The demolition works proposed will have no significant impact on adjoining lands, streetscape or public realm. Conditions may be imposed in respect of hours of operation, dust suppression and the need to investigate for, and appropriately manage the presence of, any materials containing asbestos.
Part 7 - Additional Local Provisions
7.1 - Earthworks
This clause establishes a range of matters that must be considered prior to granting development consent for any application involving earthworks, such as:
(a) the likely disruption of, or any detrimental effect on, existing drainage patterns and soil stability in the locality of the development
(b) the effect of the development on the likely future use or redevelopment of the land
(c) the quality of the fill or the soil to be excavated, or both
(d) the effect of the development on the existing and likely amenity of adjoining properties
(e) the source of any fill material and the destination of any excavated material
(f) the likelihood of disturbing relics
(g) the proximity to and potential for adverse impacts on any waterway, drinking water catchment or environmentally sensitive area
(h) any measures proposed to minimise or mitigate the impacts referred to in Paragraph (g).
In consideration of this clause, the proposal is considered to be acceptable.
The site slopes towards Forbes Road, with the existing dwelling situated on a slight rise. Due to the relatively gentle terrain, the subdivision will not require significant earthworks.
Conditional drainage infrastructure will be provided within the development to ensure earthworks and finished levels will not impact on adjoining properties or receiving waterways.
The site is not known to be contaminated, nor is the site known to contain any Aboriginal, European or archaeological relics. The site is not in proximity to any waterway, drinking water catchment or sensitive area. Conditional sediment controls will be implemented onsite during construction.
7.3 - Stormwater Management
This clause applies to all industrial, commercial and residential zones and requires that Council be satisfied that the proposal:
(a) is designed to maximise the use of water permeable surfaces on the land having regard to the soil characteristics affecting onsite infiltration of water
(b) includes, where practical, onsite stormwater retention for use as an alternative supply to mains water, groundwater or river water; and
(c) avoids any significant impacts of stormwater runoff on adjoining downstream properties, native bushland and receiving waters, or if that impact cannot be reasonably avoided, minimises and mitigates the impact.
The proposal has been designed to include permeable surfaces and will require stormwater detention within the development. It is therefore considered that the post-development runoff levels will not exceed the predevelopment levels.
Clause 7.6 Groundwater Vulnerability
The subject land is identified as ‘Groundwater Vulnerable’ on the Groundwater Vulnerability Map. Clause 7.6 applies. This clause states in part:
(3) Before determining a development application for development on land to which this clause applies, the consent authority must consider:
(a) whether or not the development (including any onsite storage or disposal of solid or liquid waste and chemicals) is likely to cause any groundwater contamination or have any adverse effect on groundwater dependent ecosystems, and
(b) the cumulative impact (including the impact on nearby groundwater extraction for potable water supply or stock water supply) of the development and any other existing development on groundwater.
In consideration of Clause 7.6, there are no aspects of the proposed residential development that will impact on groundwater and related ecosystems.
Clause 7.11 - Essential Services
Clause 7.11 applies and states:
Development consent must not be granted to development unless the consent authority is satisfied that any of the following services that are essential for the proposed development are available or that adequate arrangements have been made to make them available when required:
(a) the supply of water,
(b) the supply of electricity,
(c) the disposal and management of sewage,
(d) storm water drainage or onsite conservation,
(e) suitable road access.
In consideration of this clause, the listed utility services are available to the land and adequate for the proposal. Conditions are included on the attached Notice of Approval requiring extension, augmentation and/or upgrading of urban utility services to the standards required to service the proposed lots.
In relation to waste management, it is Council’s practice to require a waste storage facility/bin bay be provided onsite for multi dwelling housing (three plus dwellings). While the proposal involves subdivision for five allotments, it is proposed there is sufficient street frontage for proposed Lot 1 to allow bins from Lots 2 and 3 to stand on collection days without unreasonable encroachment upon the frontage of adjacent properties.
Similarly, mail boxes will be provided at the street frontage of Lots 101, 102 and 103, with sufficient frontage in Lot 1 to accommodate mailboxes for proposed Lots 2 and 3. These matters will be further addressed with future applications.
STATE ENVIRONMENTAL PLANNING POLICIES
State Environmental Planning Policy 55 Remediation of Land
State Environmental Planning Policy 55 - Remediation of Land (SEPP 55) is applicable. Pursuant to Clause 7 Contamination and remediation to be considered in determining development application:
(1) A consent authority must not consent to the carrying out of any development on land unless:
(a) it has considered whether the land is contaminated, and
(b) if the land is contaminated, it is satisfied that the land is suitable in its contaminated state (or will be suitable, after remediation) for the purpose for which the development is proposed to be carried out, and
(c) if the land requires remediation to be made suitable for the purpose for which the development is proposed to be carried out, it is satisfied that the land will be remediated before the land is used for that purpose.
The subject land has a long history of being used for residential development. A site inspection confirms that there are no obvious signs of contamination on the land. Council’s Environmental Health and Building Surveyor has recommended soil sampling for chemical residue be undertaken prior to subdivision release to ensure the land is suitable for residential use.
State Environmental Planning Policy – Infrastructure
State Environmental Planning Policy – Infrastructure is applicable to the development. Clause 101 of the SEPP relates to development having frontage to a classified Road. Forbes Road is defined as a classified road for the purposes of this assessment. Council in determining this application is required to be satisfied of the following:
(a) where practicable and safe, vehicular access to the land is provided by a road other than the classified road, and
(b) the safety, efficiency and ongoing operation of the classified road will not be adversely affected by the development as a result of -
(i) the design of the vehicular access to the land, or
(ii) the emission of smoke or dust from the development, or
(iii) the nature, volume or frequency of vehicles using the classified road to gain access to the land, and
(c) the development is of a type that is not sensitive to traffic noise or vehicle emissions, or is appropriately located and designed, or includes measures, to ameliorate potential traffic noise or vehicle emissions within the site of the development arising from the adjacent classified road.
Council’s Technical Services Department have evaluated the subject development against the above criteria contained within SEPP Infrastructure and have indicated no objections to the proposed subdivision. Recommended conditions of consent have been included on the draft Notice of Determination to address access issues.
PROVISIONS OF ANY DRAFT ENVIRONMENTAL PLANNING INSTRUMENT THAT HAS BEEN PLACED ON EXHIBITION 4.15(1)(a)(ii)
Draft Orange Local Environmental Plan 2011 (Amendments 24 to 27)
Draft Orange LEP 2011 Amendment 24 to 27 has either completed public exhibition or currently on exhibition. Amendment 24 involves various administration amendments to the LEP including updated maps; and new and amended clauses. Amendment 25 relates to 1 Leewood Drive. Amendment 26 relates to the Bloomfield Hospital site. Amendment 27 concerns 185 Leeds Parade. The proposed development will not be contrary to any matter contained in the draft Plans.
Draft Remediation of Land State Environmental Planning Policy
Draft Remediation of Land SEPP is applicable. The Draft SEPP requires in part that consideration be given to potential contamination on nearby or neighbouring properties and groundwater. The contamination status of adjoining residential lands will not impact on the proposed development.
DESIGNATED DEVELOPMENT
The proposed development is not designated development.
INTEGRATED DEVELOPMENT
The proposed development is not integrated development.
PROVISIONS OF ANY DEVELOPMENT CONTROL PLAN s4.15(1)(a)(iii)
Development Control Plan 2004
The following parts of DCP 2004 are applicable to the proposed development:
· Part 0 – Tree Preservation
· Part 2 - Natural Resource Management
· Part 3 - General Considerations
· Part 4 - Special Environmental Considerations
· Part 5 - General Considerations for Zones and Development
· Part 7 – Development in Residential Zones.
The relevant matters in Parts 2, 3 and 4 were considered in the foregoing assessment under Orange LEP 2011.
The relevant matters in Part 5 are addressed below (refer Any Submissions).
The proposal will reasonably satisfy the relevant planning outcomes in Part 0 and 7 as outlined in the following assessment.
DCP 2004-0 Tree Preservation
DCP 2004 – 0.4-2 prescribes the following Interim Planning Outcomes for Tree Preservation:
1 Trees prescribed by this DCP must not be ringbarked, cut down, topped, lopped or wilfully destroyed without the Council’s approval and landowner’s consent.
2 This clause applies to Eucalypts of any size belonging to the White Box, Yellow Box and Blakely’s Red Gum Endangered Ecological Communities, including species indicated as affected in the tree preservation table.
3 This clause applies to any tree, native or exotic, with a trunk diameter equal to or greater than 300mm at breast height.
4 This clause does not apply to species indicated as exempt in the tree preservation table.
5 An application for the Council’s approval must be accompanied by an appropriately qualified specialist (arborist) report.
In consideration of the planning outcomes, the proposal was referred to Council’s Manager City Presentation for consideration and comment. He advises:
I would have to say Peter has sought to retain as many structurally well-formed and healthy trees as could be reasonably expected when the aim of this proposal is to undertake infill development. I can concede the loss of Tree 17 Atlantic Cedar (T117) as identified in the submitted drawings.
· The approval should identify that building envelopes are as per Figure 10 – Conceptual Layout plan only drawn 4 June 2020. With a building envelope provided for Lot 103.
· Tree protection zones shall be established prior to site occupancy for demolition works as per Figure 5 – Tree Schedule and in accordance with AS4970-2009 Protection of trees on development sites.
· Hard surfaces to be constructed within the TPZ of trees identified in the Tree Schedule (Figure 5) shall be of a porous/permeable material.
In response to the above, it is considered more appropriate to establish Tree Protection Zones via an 88B instrument to ensure the viability of the remaining trees, rather than prescriptive building envelopes based on indicative footprints on vacant residential allotments. The provision of a building envelope was considered to be excessively restrictive in this case. As such, the following condition has been drafted in consultation with Council’s Manager City Presentation, and will be applied to the consent:
A Restriction as to User under Section 88B of the NSW Conveyancing Act 1919 shall be created on the title of Lots 101, 102, 103 and 104, to advise that the trees identified as being retained in Figures 4 and 5 are subject to Tree Protection Zones in accordance with the requirements of AS4970 – 2009. The 88B instrument shall require:
· Buildings shall not be constructed within the Structural Root Zone.
· Where buildings are to be constructed within 10% the Tree Protection Zone, an arborist report must be submitted outlining the potential impacts of the encroachments and actions to mitigate loss of tree health and vigour in accordance with AS4970-2009.
· Where buildings are to be constructed with an encroachment of greater than 10% within the Tree Protection Zone, an arborist report with detailed investigations must be submitted demonstrating that the tree will remain viable in accordance with AS4970-2009.
· Vehicle access requirements within the Tree Protection Zone shall be either suspended above the existing ground surface with pier holes hand excavated or excavated using vacuum trenching technology from outside the Structural Root Zone or the use of permeable pavements constructed above natural ground level.
· No roots shall be severed and piers shall be located as required to maintain the integrity of all structural roots.
· Hard surfaces to be constructed within the TPZ of trees identified in the Tree Schedule (Figures 4 and 5) shall be of a porous/permeable material.
DCP 2004-7.2 Residential Subdivision
The DCP sets the following (applicable) Planning Outcomes in regard to urban residential subdivision:
· lots below 500m2 indicate a mandatory side setback to provide for solar access and privacy
· lots are fully serviced and have direct frontage and access to a public road
· design and construction complies with the Orange Development and Subdivision Code.
· Battleaxe lots provide an adequate accessway width for the number of dwellings proposed to be served in order to allow for vehicle and pedestrian access and location of services.
The proposal will satisfy the above planning outcomes as follows:
- All of the proposed lots are defined as Standard Lots (>500m2). Indicative building footprints demonstrate dwellings of suitable area, dimensions and orientation to provide a reasonable standard of residential amenity.
- Proposed Lot 102 will have access and frontage to Forbes Road. A shared driveway will be constructed and reciprocal access rights created to serve Lots 101, 2 and 3 along the western boundary of the development lot. Lot 103 will maintain the existing gravel driveway along the eastern boundary. Access widths are considered appropriate.
- The proposed development will be connected to urban utility services. The subdivision design and construction will comply with the Orange Development and Subdivision Code, as required by conditions.
- To ensure suitable setbacks to Forbes Road for future residential development a Section 88B Restriction on the title of Proposed lots 101 and 102 requiring a 9m setback is recommended. Condition attached.
DEVELOPMENT CONTRIBUTIONS
Section 7.11 Development Contributions & Section 64 Headworks Charges
Development contributions are applicable to the proposed development, pursuant to Orange Development Contributions Plan 2017 (Rest of Orange).
The development lot currently consists of two allotments. The following contributions are based on the net residential increase of three additional lots, as follows:
|
Open Space and Recreation |
Three additional lots at 4,042.03 |
12,126.09 |
|
Community and Cultural |
Three additional lots at 1,172.18 |
3,516.54 |
|
Roads and Traffic Management |
Three additional lots at 5,335.34 |
16,006.02 |
|
Plan Preparation & Administration |
Three additional lots at 316.49 |
949.47 |
|
TOTAL: |
$32,598.12 |
Headworks charges will also apply to the proposal. The contributions are based on three additional ET’s for water supply and sewerage services.
Conditions are included on the attached Notice of Approval requiring payment of development contributions.
PROVISIONS PRESCRIBED BY THE REGULATIONS s4.15(1)(a)(iv)
Demolition of a Building (clause 92)
The proposal involves the demolition of the dwelling, pool and ancillary structures. A condition is attached requiring the demolition to be carried out in accordance with Australian Standard AS2601 - 2001: The Demolition of Structures and the requirements of Safe Work NSW.
Fire Safety Considerations (clause 93)
The proposal does not involve a change of building use for an existing building.
Buildings to be Upgraded (clause 94)
The proposal does not involve the rebuilding, alteration, enlargement or extension of an existing building.
THE LIKELY IMPACTS OF THE DEVELOPMENT S4.15(1)(B)
Visual Impacts
The proposal will alter the landscape setting of the site and streetscape. Notwithstanding, tree removal is warranted in order to enable infill development. A total of 24 trees will be retained upon the site to preserve the tree canopy of the locality, with a condition of consent and an 88B instrument required to ensure their protection against future development.
Environmental Impacts
The subject property is unlikely to have any biodiversity or habitat value due to the use of the site for residential purposes in an urban area. Inspections by Council staff did not indicate any habitat within the subject trees to be removed. The proposal will not impact on groundwater or stormwater. As such, the proposal is unlikely to have adverse impacts on the environment.
Construction
In order to minimise construction impacts on the residential setting, conditions are included on the attached Notice of Approval requiring demolition work be carried out within prescribed hours of operation.
Residential amenity
The proposed subdivision offers lots of suitable sizing to facilitate large dwellings with ample opportunity for solar access, privacy, landscaping and the like.
Traffic matters
The provisions of the Infrastructure SEPP requires the consent authority to be satisfied of certain traffic assessment criteria (see SEPP Infrastructure assessment above) prior to determination. The provisions of the SEPP do not specifically require formal referral of this type of application to TfNSW. Council’s Technical Services Department have advised that they are satisfied Forbes Road has adequate capacity for the traffic generation expected as a result of this proposal (following the construction of dwellings) and that the site has suitable access to Forbes Road, with adequate areas for onsite access, parking and manoeuvring subject to suitable building footprints.
Traffic impacts are anticipated to therefore be acceptable.
The suitability of the site s4.15(1)(c)
The subject land is considered to be suitable for the proposed development due to the following:
· The proposal is permitted on the subject land.
· Utility services are available and adequate.
· The land has suitable road access.
· The local road network is of sufficient capacity to support the proposal.
· The land is not subject to known technological or natural hazards.
· The site has no particular environmental or conservation values.
ANY SUBMISSIONS MADE IN ACCORDANCE WITH THE ACT S4.15(1)(D)
The proposed development is defined as "advertised development" pursuant to Council’s Community Participation Plan 2019 (public interest). Written and public notice of the application was given for the prescribed period. At the end of that period, two submissions were received, with the following concerns:
· ‘..listing 24-25 trees for retention seems somewhat disingenuous. Once the lots are sold off, there is no measure in place which would protect these trees at later dates from future owners/builders. (The site) continues to significantly contribute to limiting the urban heat island effect in the area, provides feeding and nesting site for fauna.. Are tree protection measures enforceable?’
A condition of consent will ensure the retention of the nominated trees. Furthermore, an additional condition of consent requires an 88B instrument to ensure future landowners are notified of the requirements associated with development within proximity to these trees, such as no building within the structural root zones, and the need for an arborist report when developing within the tree protection zone.
Tree protection matters are enforceable. Works undertaken in contravention to the conditions may be in breach of the Environmental Planning and Assessment Act 1979 and therefore subject to Council’s Enforcement Policy.
Habitat for fauna is discussed below.
· ‘We need to be limiting infill development outside of the CBD’.
The subject site is not limited by a minimum lot size pursuant to the LEP 2011, and is therefore compliant with density provisions.
· ‘The visual amenity and privacy of our outdoor space will be negatively impacted’.
It is agreed that visual privacy will be detrimentally impacted given the existing post and wire fence presently erected. The development will be required to erect a 1.8m high solid fence to ensure privacy for all adjoining neighbours, a condition has been attached to this effect.
With regard to amenity of neighbouring allotments, views into neighbouring allotments are not protected by Case Law, and thus Council is not in a position to maintain this view corridor. Additionally, there is nothing to stop the landowner from erecting a solid screen fence for their own visual privacy, regardless of this application before Council.
· ‘Tree removal will impact on bird life and amenity’.
Evidence to support this statement has not been received. The retention of 24 trees upon the site is recommended by Council’s City Presentation Manager.
· “We would like to point out that any future proposed multi-unit development would not be in alignment with the current estimated traffic movements’.
It is acknowledged that the proposal shows indicative single dwellings, and given the R1 zoning of the site a higher density of residential development may eventuate. An increase in traffic movements would be assessed at the time that development is proposed for the site.
PUBLIC INTEREST s4.15(1)(e)
The site has previously garnered a lot of interest in the past with contentious land use proposals, therefore it was considered in the best interest of the public to notify of the proposed development. As a result of the exhibition period, it can now be considered that the development is of minor interest to the wider public due to the relatively localised nature of potential impacts. The proposal is not inconsistent with any relevant policy statements, planning studies, guidelines etc that have not been considered in this assessment.
SUMMARY
The proposed development is permissible with the consent of Council. The proposed development complies with the relevant aims, objectives and provisions of Orange LEP 2011 (as amended) and DCP 2004. A Section 4.15 assessment of the development indicates that the development is acceptable in this instance. Attached is a draft Notice of Approval outlining a range of conditions considered appropriate to ensure that the development proceeds in an acceptable manner.
COMMENTS
The requirements of the Environmental Health and Building Surveyor and the Engineering Development Section are included in the attached Notice of Approval.
1 Notice of Approval, D20/48935⇩
2 Plans, D20/48984⇩
3 Submissions, D20/49024⇩
Planning and Development Committee 1 September 2020
Attachment 1 Notice of Approval
|
|
ORANGE CITY COUNCIL
Development Application No DA 221/2020(1)
NA20/ Container PR22379 |
NOTICE OF DETERMINATION
OF A DEVELOPMENT APPLICATION
issued under the Environmental Planning and Assessment Act 1979
Section 4.18
|
Development Application |
|
|
Applicant Name: |
Mr TM and Mrs CJ Cranfield |
|
Applicant Address: |
C/- Peter Basha Planning & Development PO Box 1827 ORANGE NSW 2800 |
|
Owner’s Name: |
Mr TM and Mrs CJ Cranfield |
|
Land to Be Developed: |
Lot 3 DP 1112473, Lot A DP 334156 - 78 Forbes Road, Orange |
|
Proposed Development: |
Demolition (dwelling and tree removal) and Subdivision (four lot Torrens title and three lot Community title) |
|
|
|
|
Building Code of Australia building classification: |
Not applicable |
|
|
|
|
Determination made under Section 4.16 |
|
|
Made On: |
1 September 2020 |
|
Determination: |
CONSENT GRANTED SUBJECT TO CONDITIONS DESCRIBED BELOW: |
|
|
|
|
Consent to Operate From: |
2 September 2020 |
|
Consent to Lapse On: |
2 September 2025 |
Terms of Approval
The reasons for the imposition of conditions are:
(1) To ensure a quality urban design for the development which complements the surrounding environment.
(2) To maintain neighbourhood amenity and character.
(3) To ensure compliance with relevant statutory requirements.
(4) To provide adequate public health and safety measures.
(5) Because the development will require the provision of, or increase the demand for, public amenities and services.
(6) To ensure the utility services are available to the site and adequate for the development.
(7) To prevent the proposed development having a detrimental effect on adjoining land uses.
(8) To minimise the impact of development on the environment.
|
|
|
Conditions
(1) The development must be carried out in accordance with:
(a) Plans numbered Peter Basha Planning and Development Reference 20005DA Figures 4 to 9 inclusive (6 sheets)
(b) statements of environmental effects or other similar associated documents that form part of the approval
as amended in accordance with any conditions of this consent.
|
PRESCRIBED CONDITIONS |
(2) All building work must be carried out in accordance with the provisions of the Building Code of Australia.
STAGE 1 - FOUR LOT TORRENS TITLE SUBDIVISION AND DEMOLITION
|
PRIOR TO THE ISSUE OF A CONSTRUCTION CERTIFICATE |
(3) The applicant is to submit a waste management plan that describes the nature of wastes to be removed, the wastes to be recycled and the destination of all wastes. All wastes from the demolition and construction phases of this project are to be deposited at a licensed or approved waste disposal site.
(4) Engineering plans, showing details of all proposed work and adhering to any engineering conditions of development consent, are to be submitted to, and approved by, Orange City Council or an Accredited Certifier (Categories B1, C3, C4, C6) prior to the issuing of a Construction Certificate.
(5) A water and soil erosion control plan is to be submitted to Orange City Council or an Accredited Certifier (Categories B1, C3, C4, C6) for approval prior to the issuing of a Construction Certificate. The control plan is to be in accordance with the Orange City Council Development and Subdivision Code and the Landcom, Managing Urban Stormwater; Soils and Construction Handbook.
(6) The development’s stormwater design is to include stormwater detention within the development, designed to limit peak outflows from the land to the pre-existing natural outflows up to the 100 year ARI frequency, with sufficient allowance in overflow spillway design capacity to safely pass flows of lower frequency (that is, a rarer event) without damage to downstream developments. Where appropriate, the spillway design capacity is to be determined in accordance with the requirements of the Dam Safety Committee.
The design of the detention storage is to be undertaken using the ILSAX/DRAINS rainfall-runoff hydrologic model or an approved equivalent capable of assessing runoff volumes and their temporal distribution as well as peak flow rates. The model is to be used to calculate the flow rates for the existing and post-development conditions. The developed flows are to be routed through the proposed storage within the model so that the outflows obtained are no greater than the flows obtained for the pre-existing natural flows. A report detailing the results of the analysis, which includes:
· catchment plan showing sub-catchments under existing and developed conditions;
· schematic diagram of the catchment model showing sub areas and linkages;
· tabulation detailing the elevation, storage volume and discharge relationships; and
· tabulation for the range of frequencies analysed, the inflows, outflows and peak storage levels for both existing and developed conditions;
together with copies of the data files for the model and engineering design plans of the required drainage system are to be submitted to Orange City Council upon application for a Construction Certificate.
Impervious areas for stormwater detention design calculations shall be based on all residential lots in stages 1 and 2 being fully developed including access driveways.
(7) Proposed Lot 103 shall have a 3.0m wide concrete footpath crossing and 104 shall have a 5.5m wide concrete footpath crossing constructed for vehicle access to each lot. Engineering plans providing complete details of the footpath crossings are to be submitted to Orange City Council or an Accredited Certifier (Categories B1, C3, C4, C6) upon application for a Construction Certificate. These plans are to provide details of levels, cross falls of all pavements, proposed sealing materials and proposed drainage works and are to be in accordance with Orange City Council Development and Subdivision Code and Road Opening Permit.
(8) Proposed lots 101 to 104 are to be provided with interlot stormwater drainage, including those lots abutting public land, where the surface of the entire lot cannot be drained to the kerb and gutter at the lot frontage. A grated concrete stormwater pit is to be constructed within each lot provided with interlot stormwater drainage. Engineering plans for this drainage system are to be approved by Orange City Council or an Accredited Certifier (Categories B1, C3, C4, C6) prior to the issuing of a Construction Certificate.
(9) A 150mm-diameter sewer main shall be constructed from Council’s existing main in Forbes Road to serve the proposed lots. Prior to a Construction Certificate being issued engineering plans for this sewerage system are to be submitted to and approved by Orange City Council.
(10) A Road Opening Permit in accordance with Section 138 of the Roads Act 1993 must be approved by Council prior to a Construction Certificate being issued or any intrusive works being carried out within the public road or footpath reserve.
|
PRIOR TO WORKS COMMENCING |
(11) Where any existing fencing at the perimeter of the site needs to be removed, or is of a type which does not ensure the occupants of any adjoining residence adequate privacy, new fencing shall be erected prior to any building or construction work being carried out upon this development. In this regard, 1.8m high solid screen fencing shall be erected on the rear (northern) and side (eastern and western) boundaries up to the 9m front setback.
(12) Tree protection zones shall be established prior to site occupancy for demolition and construction works as per approved plans - Figures 4 and 5 – Tree Schedule and in accordance with AS4970-2009 Protection of trees on development sites.
(13) Soil erosion control measures shall be implemented on the site.
(14) An application for a Subdivision Works Certificate is required to be submitted to, and a Certificate issued by Council/Accredited Certifier prior to any excavation or works being carried out onsite.
|
DURING CONSTRUCTION/SITEWORKS |
(15) All construction/demolition work on the site is to be carried out between the hours of 7.00 am and 6.00 pm Monday to Friday inclusive, 7.00 am to 5.00 pm Saturdays and 8.00 am to 5.00 pm Sundays and Public Holidays. Written approval must be obtained from the General Manager of Orange City Council to vary these hours.
(16) All materials on site or being delivered to the site are to be contained within the site. The requirements of the Protection of the Environment Operations Act 1997 are to be complied with when placing/stockpiling loose material or when disposing of waste products or during any other activities likely to pollute drains or watercourses.
(17) Building demolition is to be carried out in accordance with Australian Standard 2601:2001 - The Demolition of Structures and the requirements of Safe Work NSW.
(18) Asbestos containing building materials must be removed in accordance with the provisions of the Work Health and Safety Act 2011 and any guidelines or Codes of Practice published by Safe Work NSW, and disposed of at a licenced landfill in accordance with the requirements of the NSW EPA.
(19) Any adjustments to existing utility services that are made necessary by this development proceeding are to be at the full cost of the developer.
(20) The provisions and requirements of the Orange City Council Development and Subdivision Code are to be applied to this application and all work constructed within the development is to be in accordance with that Code.
The developer is to be entirely responsible for the provision of water, sewerage and drainage facilities capable of servicing all the lots from Council’s existing infrastructure. The developer is to be responsible for gaining access over adjoining land for services where necessary and easements are to be created about all water, sewer and drainage mains within and outside the lots they serve.
(21) Heavy-duty concrete footpath crossings are to be constructed in the positions shown on the plan submitted with the Construction Certificate application. The works are to be carried out to the requirements of the Orange City Council Development and Subdivision Code and Road Opening Permit.
(22) A water service and sewer junction is to be provided to every lot in the proposed residential subdivision in accordance with the Orange City Council Development and Subdivision Code.
(23) The water and sewerage services to the existing building, where they are not proposed to be used as part of this development, are to be sealed off at their respective Council mains.
(24) All services are to be contained within the allotment that they serve.
(25) A concrete footpath, a minimum of 1.2 metres wide, shall be constructed for the full frontage of the development on Forbes Road.
Construction work is to be to the requirements and standards of the Orange City Council Development and Subdivision Code.
|
PRIOR TO THE ISSUE OF A SUBDIVISION CERTIFICATE |
(26) A Restriction as to User under Section 88B of the NSW Conveyancing Act 1919 shall be created on the title of Lots 101, 102, 103 and 104, to advise that the trees identified as being retained in Figures 4 and 5 of the approved plans are subject to Tree Protection Zones in accordance with the requirements of AS4970 – 2009. The 88B instrument shall require:
· Buildings shall not be constructed within the Structural Root Zone.
· Where buildings or any works/services are to be constructed within 10% of the Tree Protection Zone, an arborist report must be submitted to Council for approval outlining the potential impacts of the encroachments and actions to mitigate loss of tree health and vigour in accordance with AS4970-2009.
· Where buildings are to be constructed with an encroachment of greater than 10% within the Tree Protection Zone, an arborist report with detailed investigations must be submitted to Council for approval demonstrating that the tree will remain viable in accordance with AS4970-2009.
· Vehicle access requirements within the Tree Protection Zone shall be either suspended above the existing ground surface with pier holes hand excavated or excavated using vacuum trenching technology from outside the Structural Root Zone or the use of permeable pavements constructed above natural ground level.
· No roots shall be severed and piers shall be located as required to maintain the integrity of all structural roots.
· Hard surfaces to be constructed within the TPZ of trees identified in the Tree Schedule (Figures 4 and 5 of the approved plans) shall be of a porous / permeable material.
(27) The payment of $21,732.08 is to be made to Council in accordance with section 94 of the Act and the Orange Development Contributions Plan 2017 (rest of Orange) towards the provision of the following public facilities:
|
Open Space and Recreation |
@ 4,042.03 x two additional lots |
8,084.06 |
|
Community and Cultural |
@ 1,172.18 x two additional lots |
2,344.36 |
|
Roads and Traffic Management Facilities |
@ 5,335.34 x two additional lots |
10,670.68 |
|
Plan Preparation & Administration |
@ 316.49 x two additional lots |
632.98 |
|
TOTAL: |
|
$21,732.08 |
The contribution will be indexed quarterly in accordance with the Orange Development Contributions Plan 2017 (rest of Orange). This Plan can be inspected at the Orange Civic Centre, Byng Street, Orange.
(28) Soil sampling for analysing chemical residue is to be carried out within the proposed Lots in a manner and frequency as determined by an appropriately qualified and experienced consultant giving consideration to previous specific uses and on-site characteristics of the site. A NATA registered laboratory is to carry out such testing. Reference is to be made to the Contaminated Land Management Act 1997 and State Environmental Planning Policy No 55 - “Remediation of Land”. The results of the testing are to be provided to the Principal Certifying Authority and are to demonstrate that the land is suitable for residential use, to enable a Subdivision Certificate to be issued.
(29) Application shall be made for a Subdivision Certificate under Section 6.3(1)(d) of the Act.
(30) Payment of contributions for water, sewer and drainage works is required to be made at the contribution rate applicable at the time that the payment is made. The contributions are based on 3 ETs for water supply headworks and 3 ETs for sewerage headworks. A Certificate of Compliance, from Orange City Council in accordance with the Water Management Act 2000, will be issued upon payment of the contributions.
This Certificate of Compliance is to be submitted to the Principal Certifying Authority prior to the issuing of a Subdivision Certificate.
(31) Application is to be made to Telstra/NBN for infrastructure to be made available to each individual lot within the development. Either a Telecommunications Infrastructure Provisioning Confirmation or Certificate of Practical Completion is to be submitted to the Principal Certifying Authority confirming that the specified lots have been declared ready for service prior to the issue of a Subdivision Certificate.
(32) A Notice of Arrangement from Essential Energy stating arrangements have been made for the provision of electricity supply to the development, is to be submitted to the Principal Certifying Authority prior to the issue of a Subdivision Certificate.
(33) A Restriction-as-to-User under section 88B of the NSW Conveyancing Act 1919 is to be registered on the Deed of Title of proposed Lot 101 where vehicular access is to be denied to Forbes Road from the southern boundary.
(34) A Restriction-as-to-User under section 88B of the NSW Conveyancing Act 1919 is to be registered on the Deed of Title of proposed Lot 101 and 102 restricting the front building setback to a minimum of 9m from Forbes Road.
(35) An easement to drain sewage and to provide Council access for maintenance of sewerage works a minimum of 2.0 metres wide is to be created over the proposed sewerage works. The Principal Certifying Authority is to certify that the easement is in accordance with the Orange City Council Development and Subdivision Code prior to the issuing of a Subdivision Certificate.
(36) All services are to be contained within the allotment that they serve. A Statement of Compliance, from a Registered Surveyor, is to be submitted to the Principal Certifying Authority prior to the issuing of a Subdivision Certificate.
(37) A Certificate of Compliance, from a Qualified Engineer, stating that the stormwater detention basin complies with the approved engineering plans is to be submitted to the Principal Certifying Authority prior to the issuing of a Subdivision Certificate.
(38) A Maintenance Security Deposit, in accordance with the provisions and requirements of the Orange City Council Development and Subdivision Code, is to be provided to Orange City Council prior to the issuing of a Subdivision Certificate.
A Certificate of Compliance, from Orange City Council, certifying that the maintenance security deposit has been paid, is to be submitted to the Principal Certifying Authority prior to the issuing of a Subdivision Certificate.
(39) Where stormwater crosses land outside the lot it favours, an easement to drain water is to be created over the works. A Restriction-as-to-User under section 88B of the NSW Conveyancing Act 1919 is to be created on the title of the burdened lots(s) requiring that no structures are to be placed on the site, or landscaping or site works carried out on the site, in a manner that affects the continued operation of the interlot drainage system. The minimum width of the easement is to be as required in the Orange City Council Development and Subdivision Code.
(40) Prior to the issue of a Subdivision Certificate a reciprocal right of way as per the stamped approved plans shall be established over the shared access handle serving proposed Lots 101 and 104.
(41) Certification from Orange City Council is required to be submitted to the Principal Certifying Authority prior to the issue of a Subdivision Certificate stating that all works relating to connection of the development to Council assets, works on public land, works on public roads, stormwater, sewer and water reticulation mains and footpaths have been carried out in accordance with the Orange City Council Development and Subdivision Code and the foregoing conditions, and that Council will take ownership of the infrastructure assets.
(42) All of the foregoing conditions are to be at the full cost of the developer and to the requirements and standards of the Orange City Council Development and Subdivision Code, unless specifically stated otherwise. All work required by the foregoing conditions is to be completed prior to the issuing of an Occupation or Subdivision Certificate, unless stated otherwise.
|
MATTERS FOR THE ONGOING PERFORMANCE AND OPERATION OF THE DEVELOPMENT |
(43) The trees identified as being retained in Figures 4 and 5 of the approved plans are subject to Tree Protection Zones in accordance with the requirements of AS4970 – 2009.
Hard surfaces to be constructed within the TPZ of trees identified in Figures 4 and 5 of the approved plans shall be of a porous/permeable material.
STAGE 2 – THREE LOT COMMUNITY TITLE SUBDIVISION
|
PRIOR TO THE ISSUE OF A CONSTRUCTION CERTIFICATE |
(44) Engineering plans, showing details of all proposed work and adhering to any engineering conditions of development consent, are to be submitted to, and approved by, Orange City Council or an Accredited Certifier (Categories B1, C3, C4, C6) prior to the issuing of a Construction Certificate.
(45) A water and soil erosion control plan is to be submitted to Orange City Council or an Accredited Certifier (Categories B1, C3, C4, C6) for approval prior to the issuing of a Construction Certificate. The control plan is to be in accordance with the Orange City Council Development and Subdivision Code and the Landcom, Managing Urban Stormwater; Soils and Construction Handbook.
(46) Engineering plans providing complete details of the proposed driveway and car parking areas are to be submitted to Orange City Council or an Accredited Certifier (Categories B1, C3, C4, C6) upon application for a Construction Certificate. These plans are to provide details of levels, cross falls of all pavements, proposed sealing materials and proposed drainage works and are to be in accordance with Orange City Council Development and Subdivision Code.
(47) A 150mm-diameter sewer main is to be constructed from Council’s existing main to serve the proposed lots. Prior to a Construction Certificate being issued engineering plans for this sewerage system are to be submitted to and approved by Orange City Council.
(48) A single common water service and meter shall be located in the community property lot. Engineering plans of the meter location and size shall be submitted to Orange City Council for approval prior to the issuing of a Construction Certificate.
Internal water mains servicing the development from the common water meter shall be constructed as private water mains.
|
PRIOR TO WORKS COMMENCING |
(49) Soil erosion control measures shall be implemented on the site.
(50) An application for a Subdivision Works Certificate is required to be submitted to, and a Certificate issued by Council/Accredited Certifier prior to any excavation or works being carried out onsite.
(51) Tree protection zones shall be established prior to site occupancy for demolition and construction works as per Figure 5 – Tree Schedule and in accordance with AS4970-2009 Protection of trees on development sites.
|
DURING CONSTRUCTION/SITEWORKS |
(52) All services are to be contained within the allotment that they serve.
(53) All construction/demolition work on the site is to be carried out between the hours of 7.00 am and 6.00 pm Monday to Friday inclusive, 7.00 am to 5.00 pm Saturdays and 8.00 am to 5.00 pm Sundays and Public Holidays. Written approval must be obtained from the General Manager of Orange City Council to vary these hours.
(54) All materials on site or being delivered to the site are to be contained within the site. The requirements of the Protection of the Environment Operations Act 1997 are to be complied with when placing/stockpiling loose material or when disposing of waste products or during any other activities likely to pollute drains or watercourses.
(55) Any adjustments to existing utility services that are made necessary by this development proceeding are to be at the full cost of the developer.
(56) The provisions and requirements of the Orange City Council Development and Subdivision Code are to be applied to this application and all work constructed within the development is to be in accordance with that Code.
The developer is to be entirely responsible for the provision of water, sewerage and drainage facilities capable of servicing all the lots from Council’s existing infrastructure. The developer is to be responsible for gaining access over adjoining land for services where necessary and easements are to be created about all water, sewer and drainage mains within and outside the lots they serve.
(57) All driveway and parking areas are to be sealed with bitumen, hot mix or concrete and are to be designed for all expected loading conditions (provided however that the minimum pavement depth for gravel and flush seal roadways is 200mm) and be in accordance with the Orange City Council Development and Subdivision Code.
(58) Water and sewerage reticulation is to be provided to each lot in the proposed residential subdivision in accordance with the Orange City Council Development and Subdivision Code.
|
PRIOR TO THE ISSUE OF A SUBDIVISION CERTIFICATE |
(59) Soil sampling for analysing chemical residue is to be carried out within the proposed Lots in a manner and frequency as determined by an appropriately qualified and experienced consultant giving consideration to previous specific uses and on-site characteristics of the site. A NATA‑registered laboratory is to carry out such testing. Reference is to be made to the Contaminated Land Management Act 1997 and State Environmental Planning Policy No 55 - “Remediation of Land”. The results of the testing are to be provided to the Principal Certifying Authority and are to demonstrate that the land is suitable for residential use, to enable a Subdivision Certificate to be issued.
(60) A Restriction as to User under Section 88B of the NSW Conveyancing Act 1919 shall be created on the title of Lots 2 and 3 to advise that the trees identified as being retained in Figure 4 and 5 of the stamped approved plans are subject to Tree Protection Zones in accordance with the requirements of AS4970 – 2009. The 88B instrument shall require:
· Buildings shall not be constructed within the Structural Root Zone.
· Where buildings or any works/services are to be constructed within 10% the Tree Protection Zone, an arborist report must be submitted to Council for approval outlining the potential impacts of the encroachments and actions to mitigate loss of tree health and vigour in accordance with AS4970-2009.
· Where buildings are to be constructed with an encroachment of greater than 10% within the Tree Protection Zone, an arborist report with detailed investigations must be submitted to Council for approval demonstrating that the tree will remain viable in accordance with AS4970-2009.
· Vehicle access requirements within the Tree Protection Zone shall be either suspended above the existing ground surface with pier holes hand excavated or excavated using vacuum trenching technology from outside the Structural Root Zone or the use of permeable pavements constructed above natural ground level.
· No roots shall be severed and piers shall be located as required to maintain the integrity of all structural roots.
· Hard surfaces to be constructed within the TPZ of trees identified in the Tree Schedule (Figures 4 and 5) shall be of a porous/permeable material.
(61) The payment of $10,866.04 is to be made to Council in accordance with section 94 of the Act and the Orange Development Contributions Plan 2017 (rest of Orange) towards the provision of the following public facilities:
|
Open Space and Recreation |
@ 4,042.03 x one additional lot |
4,042.03 |
|
Community and Cultural |
@ 1,172.18 x one additional lot |
1,172.18 |
|
Roads and Traffic Management Facilities |
@ 5,335.34 x one additional lot |
5,335.34 |
|
Plan Preparation & Administration |
@ 316.49 x one additional lot |
316.49 |
|
TOTAL: |
|
$10,866.04 |
The contribution will be indexed quarterly in accordance with the Orange Development Contributions Plan 2017 (rest of Orange). This Plan can be inspected at the Orange Civic Centre, Byng Street, Orange.
(62) Application shall be made for a Subdivision Certificate under Section 6.3(1)(d) of the Act.
(63) Payment of contributions for water, sewer and drainage works is required to be made at the contribution rate applicable at the time that the payment is made. The contributions are based on 1.0 ETs for water supply headworks and 1.0 ETs for sewerage headworks. A Certificate of Compliance, from Orange City Council in accordance with the Water Management Act 2000, will be issued upon payment of the contributions.
This Certificate of Compliance is to be submitted to the Principal Certifying Authority prior to the issuing of a Subdivision Certificate.
(64) Application is to be made to Telstra/NBN for infrastructure to be made available to each individual lot within the development. Either a Telecommunications Infrastructure Provisioning Confirmation or Certificate of Practical Completion is to be submitted to the Principal Certifying Authority confirming that the specified lots have been declared ready for service prior to the issue of a Subdivision Certificate.
(65) A Notice of Arrangement from Essential Energy stating arrangements have been made for the provision of electricity supply to the development, is to be submitted to the Principal Certifying Authority prior to the issue of a Subdivision Certificate.
(66) An easement to drain sewage and to provide Council access for maintenance of sewerage works a minimum of 2.0 metres wide is to be created over the proposed sewerage works. The Principal Certifying Authority is to certify that the easement is in accordance with the Orange City Council Development and Subdivision Code prior to the issuing of a Subdivision Certificate.
(67) All services are to be contained within the allotment that they serve. A Statement of Compliance, from a Registered Surveyor, is to be submitted to the Principal Certifying Authority prior to the issuing of a Subdivision Certificate.
(68) Where stormwater crosses land outside the lot it favours, an easement to drain water is to be created over the works. A Restriction-as-to-User under section 88B of the NSW Conveyancing Act 1919 is to be created on the title of the burdened lot(s) requiring that no structures are to be placed on the site, or landscaping or site works carried out on the site, in a manner that affects the continued operation of the interlot drainage system. The minimum width of the easement is to be as required in the Orange City Council Development and Subdivision Code.
(69) Prior to the issue of a Subdivision Certificate the following conditions ‘a’ to ‘e’ must be included in the Community Title Management statement:
a water and sewer mains constructed as private services by the developer must accord with at least the National Plumbing Code standards; and
b Orange City Council makes no representation that the private water and sewer related services provided to the development are suitable; and
c. if a request is made at any time in the future by the developer or future owner to Orange City Council to extend the private services for any reason, then such extension shall be at Orange City Council standards including appropriate easements and must be constructed, funded and transferred by the applicant; and
d. Orange City Council will not provide maintenance services to the private services; and
e. clauses a-e shall not be deleted, varied or modified without the written consent of Orange City Council.
(70) Certification from Orange City Council is required to be submitted to the Principal Certifying Authority prior to the issue of a Subdivision Certificate stating that all works relating to connection of the development to Council assets, works on public land, works on public roads, stormwater, sewer and water reticulation mains and footpaths have been carried out in accordance with the Orange City Council Development and Subdivision Code and the foregoing conditions, and that Council will take ownership of the infrastructure assets.
(71) All of the foregoing conditions are to be at the full cost of the developer and to the requirements and standards of the Orange City Council Development and Subdivision Code, unless specifically stated otherwise. All work required by the foregoing conditions is to be completed prior to the issuing of an Occupation or Subdivision Certificate, unless stated otherwise.
|
MATTERS FOR THE ONGOING PERFORMANCE AND OPERATION OF THE DEVELOPMENT |
(72) The trees identified as being retained in Figures 4 and 5 of the approved plans are subject to Tree Protection Zones in accordance with the requirements of AS4970 – 2009.
Hard surfaces to be constructed within the TPZ of trees identified in the Tree Schedule (Figures 4 and 5) shall be of a porous/permeable material.
|
|
|
Other Approvals
(1) Local Government Act 1993 approvals granted under Section 68.
Nil
(2) General terms of other approvals integrated as part of this consent.
Nil
|
|
|
Right of Appeal
If you are dissatisfied with this decision, Section 8.7 of the Environmental Planning and Assessment Act 1979 gives you the right to appeal to the Land and Environment Court. Pursuant to Section 8.10, an applicant may only appeal within 6 months after the date the decision is notified.
|
Disability Discrimination Act 1992: |
This application has been assessed in accordance with the Environmental Planning and Assessment Act 1979. No guarantee is given that the proposal complies with the Disability Discrimination Act 1992.
The applicant/owner is responsible to ensure compliance with this and other anti-discrimination legislation.
The Disability Discrimination Act covers disabilities not catered for in the minimum standards called up in the Building Code of Australia which references AS1428.1 - "Design for Access and Mobility". AS1428 Parts 2, 3 and 4 provides the most comprehensive technical guidance under the Disability Discrimination Act currently available in Australia. |
|
|
|
|
Disclaimer - S88B of the Conveyancing Act 1919 - Restrictions on the Use of Land: |
The applicant should note that there could be covenants in favour of persons other than Council restricting what may be built or done upon the subject land. The applicant is advised to check the position before commencing any work. |
|
|
|
|
Signed: |
On behalf of the consent authority ORANGE CITY COUNCIL |
|
Signature: |
|
|
Name: |
PAUL JOHNSTON - MANAGER DEVELOPMENT ASSESSMENTS |
|
Date: |
2 September 2025 |
RECORD NUMBER: 2020/1531
AUTHOR: Summer Commins, Senior Planner
EXECUTIVE Summary
|
Application lodged |
22 May 2020 |
|
Applicant/s |
Brothers Three Pty Ltd |
|
Owner/s |
Brothers Three Pty Ltd |
|
Land description |
Lot 101 DP 1053642 - 4613 Mitchell Highway, Lucknow |
|
Proposed land use |
Service Station (removal of existing fuel dispensers, fill points, underground fuel tanks and pipework; construction of a two dispenser covered vehicle fuelling area, new underground fuel tanks and forecourt pollution control system) and Business Identification Signage |
|
Value of proposed development |
$620,000 |
Council's consent is sought for service station upgrade at 4613 Mitchell Highway, Lucknow (see locality at Figure 1).
The proposal involves removal and replacement of existing underground fuel storage tanks and fuel pumps; construction of a refuelling canopy; and upgraded forecourt works for stormwater treatment.
Notable planning matters for this application include the suitability of the local road network to accommodate traffic associated with the service station; the impacts on the proposal on nearby residential amenity; and the constraints imposed by the Village character and conservation setting.
The development application was referred to Transport for NSW (TfNSW) for consideration and comment. Service stations are traffic generating development pursuant to State Environmental Planning Policy (Infrastructure) 2007; and TfNSW concurrence is required for works within the road reserve at the site frontage under Section 138 of the Roads Act 1993. TfNSW raised no objection to the proposal. Minor upgrading works within the road reserve have been recommended in conjunction with Council’s Development Engineers.
The proposal comprises Notified Development pursuant to Council’s Community Participation Plan 2019. At the completion of the notification period, two submissions had been received from one neighbour. The issues raised in the submissions relate to residential amenity (noise, light and odour); and traffic arrangements (site access and highway upgrade).
As outlined in this report, the proposed development is considered to satisfy the Local and State planning controls that apply to the subject land and particular landuse. Impacts of the development will be within reasonable limit subject to mitigation conditions. Approval of the application is recommended.

Figure 1 - locality plan
DECISION FRAMEWORK
Development in Orange is governed by two key documents Orange Local Environment Plan 2011 and Orange Development Control Plan 2004. In addition the Infill Guidelines are used to guide development, particularly in the heritage conservation areas and around heritage items.
Orange Local Environment Plan 2011 – The provisions of the LEP must be considered by the Council in determining the application. LEPs govern the types of development that are permissible or prohibited in different parts of the City and also provide some assessment criteria in specific circumstances. Uses are either permissible or not. The objectives of each zoning and indeed the aims of the LEP itself are also to be considered and can be used to guide decision making around appropriateness of development.
Orange Development Control Plan 2004 – the DCP provides guidelines for development. In general it is a performance based document rather than prescriptive in nature. For each planning element there are often guidelines used. These guidelines indicate ways of achieving the planning outcomes. It is thus recognised that there may also be other solutions of merit. All design solutions are considered on merit by planning and building staff. Applications should clearly demonstrate how the planning outcomes are being met where alternative design solutions are proposed. The DCP enables developers and architects to use design to achieve the planning outcomes in alternative ways.
DIRECTOR’S COMMENT
The proposed service station upgrade is permitted with consent. This proposal ultimately involves an environmental upgrade of an existing Service Station. The key planning issues considered in this report include the suitability of the local road network to accommodate traffic associated with the development; the impacts on the proposal on nearby residential amenity; and the constraints associated with the Village character and conservation setting. It is recommended that Council supports the proposed development and the accompanying Notice of Determination.
Link To Delivery/OPerational Plan
The recommendation in this report relates to the Delivery/Operational Plan strategy “10.1 Preserve - Engage with the community to ensure plans for growth and development are respectful of our heritage”.
Financial Implications
Nil
Policy and Governance Implications
Nil
|
That Council consents to development application DA 191/2020(1) for Service Station (removal of existing fuel dispensers, fill points, underground fuel tanks and pipework; construction of a two dispenser covered vehicle fuelling area, new underground fuel tanks and forecourt pollution control system) and Business Identification Signage at Lot 101 DP 1053642 - 4613 Mitchell Highway, Lucknow, pursuant to the conditions of consent in the attached Notice of Approval. |
further considerations
Consideration has been given to the recommendation’s impact on Council’s service delivery; image and reputation; political; environmental; health and safety; employees; stakeholders and project management; and no further implications or risks have been identified.
SUPPORTING INFORMATION
The site is the subject of recent development consent for a larger service station re‑development (DA 33/2018(1) approved 18 December 2018).
The approved development involves demolition/removal of all improvements on the site, and replacement with new underground tanks; fuel dispensing bowsers; three service channels (rows of pumps); and convenience store with floor area of 200m2. An extract of the approved plans is shown below (see Figures 2 and 3).

Figure 2 – approved site plan DA 33/2018(1)

Figure 3 – approved sales building DA 33/2018(1)
The applicant has advised that the approved development will not proceed. Conditions are included on the attached Notice of Approval requiring DA 33/2018(1) be surrendered in accordance with Section 4.17(5) of the Environmental Planning and Assessment Act 1979, prior to issue of a Construction Certificate for the current proposal.
THE PROPOSAL
The new proposal involves upgrading of the existing service station on the subject land. Proposed works include:
· demolition of existing fuel dispensers, fill points, underground fuel tanks and associated pipe works
· installation of two x 70,000L underground fuel storage tanks
· installation of two fuel dispensers, each with ten hoses
· construction of a refuelling canopy of dimensions 11m x 15m, with height of 5.4m
· extension of concrete forecourt vehicle areas
· installation of pollution control requirements (puraceptor and bunding)
· removal of existing pylon sign on the footpath at the site frontage
· installation of brand signage, comprising fascia signage to canopy and 6m freestanding pylon sign.
The existing sales building will be retained in its current form. The location of existing site accesses via the Mitchell Highway will not be altered. Proposed hours of operation are 7am to 10pm, 7 days per week.
The proposed site layout, canopy design and pylon sign are depicted below (see Figures below).

Figure 4 – proposed site layout

Figure 5 – canopy (North Eastern elevation to Mitchell Highway)

Figure 6 – proposed pylon sign
MATTERS FOR CONSIDERATION UNDER THE ENVIRONMENTAL PLANNING AND ASSESSMENT ACT 1979
Section 1.7 - Application of Part 7 of the Biodiversity Conservation Act 2016 and Part 7A of the Fisheries Management Act 1994
Pursuant to Clause 1.7:
This Act has effect subject to the provisions of Part 7 of the Biodiversity Conservation Act 2016 and Part 7A of the Fisheries Management Act 1994 that relate to the operation of this Act in connection with the terrestrial and aquatic environment.
In consideration of this section, the proposed development is not likely to significantly affect a threatened species:
· The subject and adjoining lands are not identified as biodiversity sensitive on the Orange LEP 2011 Terrestrial Biodiversity Map.
· The proposal does not involve clearing or disturbance of native vegetation; clearing thresholds prescribed by regulation do not apply.
· The site is contained within an established urban area and has been highly modified by the urban landuse pattern. The subject land does not contain known threatened species or ecological communities.
Based on the foregoing consideration, a Biodiversity Assessment Report is not required and the proposal suitably satisfies the relevant matters at Clause 1.7.
Section 4.15 Evaluation
Provisions of any Environmental Planning Instrument S4.15(1)(A)(I)
Orange Local Environmental Plan 2011
Part 1 – Preliminary
Clause 2.1 Aims of Plan
The particular aims of Orange LEP 2011 relevant to the proposal include:
(a) to encourage development which complements and enhances the unique character of Orange as a major regional centre boasting a diverse economy and offering an attractive regional lifestyle,
(b) to provide for a range of development opportunities that contribute to the social, economic and environmental resources of Orange in a way that allows present and future generations to meet their needs by implementing the principles for ecologically sustainable development,
(c) to conserve and enhance the water resources on which Orange depends, particularly water supply catchments,
(f) to recognise and manage valued environmental heritage, landscape and scenic features of Orange.
The proposed development is considered to be consistent with the above-listed LEP Aims.
· The proposal involves upgrading of a derelict site, with positive impacts on village character and function, and flow-on effects for the local economy and regional centre status.
· The proposed development is not considered to be adverse to ESD principles. The proposal involves environmental upgrade of the existing facility, incorporating contemporary quality standards.
· As outlined in this report, the proposed service station upgrade will be sited, designed and managed to protect water resources.
· As outlined in the following sections of this report, the proposal will not adversely impact on the conservation values of the setting.
Clause 1.6 Consent Authority
Clause 1.6 is applicable and states:
The consent authority for the purposes of this Plan is (subject to the Act) the Council.
Clause 1.7 Mapping
The subject site is identified on the LEP maps in the following manner:
|
Land Zoning Map: |
Land zoned RU5 Village |
|
Lot Size Map: |
Minimum Lot Size 1,000m2 |
|
Heritage Map: |
Within a heritage conservation area |
|
Height of Buildings Map: |
No building height limit |
|
Floor Space Ratio Map: |
No floor space limit |
|
Terrestrial Biodiversity Map: |
No biodiversity sensitivity on the site |
|
Groundwater Vulnerability Map: |
Groundwater vulnerable |
|
Drinking Water Catchment Map: |
Within the drinking water catchment |
|
Watercourse Map: |
Not within or affecting a defined watercourse |
|
Urban Release Area Map: |
Not within an urban release area |
|
Obstacle Limitation Surface Map: |
No restriction on building siting or construction |
|
Additional Permitted Uses Map: |
No additional permitted use applies |
|
Flood Planning Map: |
Not within a flood planning area |
Those matters that are of relevance are addressed in detail in the body of this report.
Clause 1.9A Suspension of Covenants, Agreements and Instruments
Clause 1.9A is applicable and states in part:
(1) For the purpose of enabling development on land in any zone to be carried out in accordance with this Plan or with a consent granted under the Act, any agreement, covenant or other similar instrument that restricts the carrying out of that development does not apply to the extent necessary to serve that purpose.
(2) This clause does not apply:
(a) to a covenant imposed by the Council or that the Council requires to be imposed, or
(b) to any prescribed instrument within the meaning of section 183A of the Crown Lands Act 1989, or
(c) to any conservation agreement within the meaning of the National Parks and Wildlife Act 1974, or
(d) to any Trust agreement within the meaning of the Nature Conservation Trust Act 2001, or
(e) to any property vegetation plan within the meaning of the Native Vegetation Act 2003, or
(f) to any biobanking agreement within the meaning of Part 7A of the Threatened Species Conservation Act 1995, or
(g) to any planning agreement within the meaning of Division 6 of Part 4 of the Act.
In consideration of this clause, Council staff are not aware of the title of the subject property being affected by any of the above. Easements relating to the allocation of parking for adjacent development will remain in place.
Part 2 - Permitted or Prohibited Development
Clause 2.1 - Land Use Zones
The subject land is zoned RU5 Village.
The proposed development is defined as a ‘service station’, which means:
A building or place used for the sale by retail of fuels and lubricants for motor vehicles, whether or not the building or place is also used for any one or more of the following –
(a) the ancillary sale by retail of spare parts and accessories for motor vehicles,
(b) the cleaning of motor vehicles,
(c) installation of accessories,
(d) inspecting, repairing and servicing of motor vehicles (other than body building, panel beating, spray painting, or chassis restoration),
(e) the ancillary retail selling or hiring of general merchandise or services or both.
Service stations are permitted with consent in the RU5 Village zone.
Clause 2.3 Zone Objectives and Land Use Table
The objectives of the RU5 Village zone are:
· To provide for a range of land uses, services and facilities that are associated with a rural village.
· To enhance and maintain the unique village character of Lucknow and Spring Hill.
The proposal will not be adverse to the zone objectives. Services stations are a permitted and complementary land use in the RU5 zone. The use of the land as a service station is a longstanding and accepted component of the village. Upgrading of the site will have positive impacts on village character and function. Mitigation conditions will minimise offsite arising impacts for adjoining properties.
Clause 2.7 Demolition Requires Development Consent
Clause 2.7 is applicable and states:
‘The demolition of a building or work may be carried out only with development consent’
Consent is sought for demolition/removal of existing fuel dispensers, fill points, underground fuel tanks and infrastructure, and pylon sign in accordance with this clause.
Part 3 - Exempt and Complying Development
The application is not exempt or complying development.
Part 4 - Principal Development Standards
The Development Standards at Part 4 are not applicable to the subject land or proposed development.
Part 5 - Miscellaneous Provisions
Clause 5.10 Heritage Conservation
The subject site is located within the Lucknow Heritage Conservation Area. Clause 5.10 is applicable and states in part:
(4) The consent authority must, before granting consent under this clause in respect of a heritage item or heritage conservation area, consider the effect of the proposed development on the heritage significance of the item or area concerned…
In consideration of this clause, the proposed development was referred to Council’s Heritage Advisor for consideration and comment. He advises:
‘The use of standard structures and the corporate colour scheme is accepted on the condition that suitable mitigation is provided for the impact of the contemporary structure within the historic setting.
The condition of the existing service building is poor. There are elements of the structure and paint finish which appear to produce hazards and these include loose lead based paint, damaged structures and loose building fabric.
In addition the site management is poor with the placement of signs on public land, the placement of rubbish bins on the site frontage and an insecure site perimeter. These aspects of the site reflect poorly on the business operator, reflect poorly on the business brand and indirectly reflect poorly on the local Lucknow community and businesses. ‘
The Heritage Advisor has provided a number of recommendations to ensure that the visual impact of the works will be acceptable within the heritage setting. The recommendations and staff comments are tabulated below.
|
Heritage Advisor Recommendation |
Staff Response |
|
The steel-framed canopy structure shall be painted Dulux Shale Grey |
A condition is included. |
|
The fuel canopy soffit shall be painted / finished Dulux Shale Grey |
A condition is included. |
|
A lighting study shall be prepared to ensure glare and light spill from the canopy complies with relevant standards |
Pre-construction and operational conditions are included. |
|
Standard rural fencing shall be erected to site boundaries |
This is considered to be unreasonable/unnecessary. The front (north) boundary is affected by extensive vehicle crossovers. Solid fencing is required to side and rear boundaries for noise attenuation. |
|
A landscape plan shall be prepared, including hedge screen to side boundaries |
A condition is included. |
|
Existing signage shall be removed and replaced with proposed signage in the DA |
A condition is included. |
|
New concrete driveways shall be through-coloured using a charcoal oxide |
A condition is included requiring a consistent concrete coloured finish over the site. |
|
The acoustic screen to the side (east) boundary shall be approved prior to construction |
A condition is included requiring the acoustic screen be constructed of lapped and capped timber palings and have a height of 1-.8m - 2.1m. |
As noted above, the proposed development does not involve any works to the existing sales building. Site inspection indicates that the building is in a state of disrepair and renovation works will likely be required (see photo at Figure 7).

Figure 7 – existing sales building (Google maps)
Conditions are included on the attached Notice of Approval that further consent will be required for any works that are not exempt development pursuant to SEPP (Exempt and Complying Development Codes) 2008.
Subject to compliance with the mitigation conditions above, it is considered that the proposal will not have adverse impact on the significance of the Lucknow Heritage Conservation Area, pursuant to Clause 5.10(4). Site upgrading will have positive impacts on the village character and may increase appreciation of the heritage setting.
Part 7 - Additional Local Provisions
Clause 7.3 Stormwater Management
Clause 7.3 is applicable and states in part:
(3) Development consent must not be granted to development on land to which this clause applies unless the consent authority is satisfied that the development:
(a) is designed to maximise the use of water permeable surfaces on the land having regard to the soil characteristics affecting onsite infiltration of water, and
(b) includes, where practical, onsite stormwater retention for use as an alternative supply to mains water, groundwater or river water, and
(c) avoids any significant impacts of stormwater runoff on adjoining downstream properties, native bushland and receiving waters, or if that impact cannot be reasonably avoided, minimises and mitigates the impact.
Council’s Assistant Development Engineer has included conditions to satisfy the requirements of Clause 7.3. The design and construction of the conditional stormwater treatment system for the upgraded site shall ensure stormwater runoff achieves standardised and contemporary stormwater quality targets.
Clause 7.6 Groundwater Vulnerability
The subject land is identified as Groundwater Vulnerable on the Groundwater Vulnerability Map. Clause 7.6 applies. This clause states in part:
(3) Before determining a development application for development on land to which this clause applies, the consent authority must consider:
(a) whether or not the development (including any onsite storage or disposal of solid or liquid waste and chemicals) is likely to cause any groundwater contamination or have any adverse effect on groundwater dependent ecosystems, and
(b) the cumulative impact (including the impact on nearby groundwater extraction for potable water supply or stock water supply) of the development and any other existing development on groundwater.
In consideration of Clause 7.6, there are no aspects of the proposal that will impact on groundwater and related ecosystems. The design and construction of the underground fuel tanks and onsite pollution control and containment measures will be suitable to prevent any groundwater contamination.
Clause 7.7 Drinking Water Catchments
The subject land is identified as ‘drinking water’ on the Drinking Water Catchment Map. Clause 7.7 is applicable and states in part:
(3) Before determining a development application for development on land to which this clause applies, the consent authority must consider whether or not the development is likely to have any adverse impact on the quality and quantity of water entering the drinking water storage, having regard to:
(a) the distance between the development and any waterway that feeds into the drinking water storage, and
(b) the onsite use, storage and disposal of any chemicals on the land, and
(c) the treatment, storage and disposal of waste water and solid waste generated or used by the development.
In consideration of this clause, the proposed service station upgrade is unlikely to impact on the quality and quantity of water entering the drinking water catchment. The conditional stormwater design will ensure runoff complies with standardised targets. Underground fuel tank storage will be designed and constructed in accordance with contemporary standards. Pollution control and containment measures will be installed onsite.
Clause 7.11 Essential Services
Clause 7.11 applies and states:
Development consent must not be granted to development unless the consent authority is satisfied that any of the following services that are essential for the proposed development are available or that adequate arrangements have been made to make them available when required:
(a) the supply of water,
(b) the supply of electricity,
(c) the disposal and management of sewage,
(d) storm water drainage or onsite conservation,
(e) suitable road access.
In consideration of this clause, the listed utility services are available and suitable subject to augmentation.
STATE ENVIRONMENTAL PLANNING POLICIES
State Environmental Planning Policy No 55 Remediation of Land
SEPP 55 Remediation of Land is applicable. Pursuant to Clause 7 Contamination and remediation to be considered in determining development application:
(1) A consent authority must not consent to the carrying out of any development on land unless:
(a) it has considered whether the land is contaminated, and
(b) if the land is contaminated, it is satisfied that the land is suitable in its contaminated state (or will be suitable, after remediation) for the purpose for which the development is proposed to be carried out, and
(c) if the land requires remediation to be made suitable for the purpose for which the development is proposed to be carried out, it is satisfied that the land will be remediated before the land is used for that purpose.
The subject land has longstanding use as a service station; indeed Council’s records suggest this use dates back to the 1940s. Service stations are a “Table 1” listed use in the Contaminated Land Planning Guidelines (DUAP & EPA 1998), ie. use of land that is likely to cause contamination.
Environmental Site Assessment was submitted in support of the proposal (NEO Consulting (November 2017). The NEO concluded:
Laboratory analysis of each soil sample taken at the site indicates the site is well within the acceptable contamination and had no evidence of reaching any health based investigation levels. Based on these results, the site is suitable to continue as its current landuse as a fuel service site.
NEO recommendations for ongoing monitoring for site contamination included:
· Installation of at least three onsite water monitoring wells consistent with the Protection of the Environment Operations (Underground Petroleum Storage Systems) Regulation 2019; and
· Monthly Statistical Inventory Reconciliation Analysis (SIRA) of deliveries, sales and dips of petroleum products, consistent with EPA Guidelines.
Council’s Environmental Health Officer concurs with the findings and recommendations of the Environmental Site Assessment. The recommendations listed above are included as conditions of consent on the attached Notice of Approval.
It is noted that the submitted Environmental Site Assessment does not include soil samples in the vicinity of /underneath the existing underground fuel storage tanks, as these are yet to be removed. Conditions are included requiring contamination testing and appropriate disposal of excavated material from the site; and contamination validation at the completion of excavation.
State Environmental Planning Policy No 33 Hazardous and Offensive Development
SEPP 33 is applicable where it is determined that the proposal is hazardous or offensive development. The relevant aims and objectives of the Policy at Clause 2 include:
(2) Aims, objectives etc
This Policy aims -
(d) to ensure that in determining whether a development is a hazardous or offensive industry, any measures proposed to be employed to reduce the impact of the development are taken into account, and
(e) to ensure that in considering any application to carry out potentially hazardous or offensive development, the consent authority has sufficient information to assess whether the development is hazardous or offensive and to impose conditions to reduce or minimise any adverse impact.
In order to determine whether the proposed development is potentially hazardous or offensive, a Risk Screening Test is applied, pursuant to Hazardous and Offensive Development Application Guidelines - Applying SEPP 33 (SEPP 33 Guidelines) (Department of Planning 2011).
The following details are required to inform the Risk Screening Test:
· Hazardous materials: motor spirit products - petrol, diesel.
· Dangerous goods classification: Class 3 PG II.
· Mode of storage: underground tanks.
· Maximum quantity stored: 140,000KL % 5 for underground storage = 28,000L or approx. 23 tonnes.
· Distance of filling/dispensing point to nearest boundary: 12.3m.
· Weekly and annual deliveries: three per week/150 per year.
With reference to the graph at Figure 9 of the SEPP 33 Guidelines, the proposed development will not exceed the volume and distance threshold (see graph below).

Figure 8 – screening graph – applying SEPP 33
Similarly, with reference to Table 2 of the SEPP 33 Guidelines, the proposed development will not exceed the maximum transportation threshold of 750 annual deliveries for Class 3 PG II hazardous materials. Conditions are included to ensure that development remains below this threshold in the future.
As the screening threshold tests were not exceeded, the proposal does not comprise potentially hazardous development and SEPP 33 is not applicable.
Notwithstanding, a preliminary hazard analysis (PHA) has been submitted in support of the proposed development as a matter of completeness (MCHP Architects May 2020). The qualitative risk analysis confirms that the societal risk associated with the proposed development will be negligible, subject to compliance with applicable standards and safeguards during design, construction and operation. Conditions are included on the attached Notice of Approval to ensure same.
The proposed development will be acceptable in terms of the requirements of SEPP 33 requirements.
State Environmental Planning Policy Infrastructure 2007
Division 17 Roads and Traffic
Clause 101 Development with Frontage to a Classified Road
The subject land has frontage to a classified road (Mitchell Highway) and Clause 101 Development with Frontage to a Classified Road applies. This clause states in part:
(2) The consent authority must not grant consent to development on land that has a frontage to a classified road unless it is satisfied that:
(a) where practicable, vehicular access to the land is provided by a road other than the classified road, and
(b) the safety, efficiency and ongoing operation of the classified road will not be adversely affected by the development as a result of:
(i) the design of the vehicular access to the land, or
(ii) the emission of smoke or dust from the development, or
(iii) the nature, volume or frequency of vehicles using the classified road to gain access to the land, and
(c) the development is of a type that is not sensitive to traffic noise or vehicle emissions, or is appropriately located and designed, or includes measures, to ameliorate potential traffic noise or vehicle emissions within the site of the development arising from the adjacent classified road.
In consideration of Clause 101:
· Existing dual access to the subject land via the Mitchell Highway will be retained in its current locations. The subject land does not have alternative site access via another road.
· The proposal will not adversely impact on the safety, efficiency and operation of the classified road due to the following:
- All vehicles will enter the site via the eastern crossover and driveway, and exit the site via the western crossover and driveway. Conditions are included requiring erection of signage to effect these arrangements.
- Site entrances will be upgraded. Conditions are included requiring reconstruction of both existing footpath crossings, suitable to accommodate the turn path of a 19m articulated vehicle.
- NO STOPPING signage shall be installed along both sides of the Mitchell Highway at the site frontage, and for a distance of at least 60m on approach and 60m on departure from the turning points into the site. Conditions are included to effect these arrangements.
- The existing concrete slab and pylon sign in the road reserve at the site frontage will be removed, and the area reinstated as public footpath.
- All un/loading activities shall be carried out within the subject land. Service deliveries shall be undertaken outside peak hours of patronage, as required by conditions.
- Site access will not be available for vehicles longer than 12.5m, excepting semi‑trailers for fuel resupply. Signage will be installed at the site entrances to limit vehicle size.
- The development does not involve emissions.
- The site has longstanding use as a service station, and traffic associated with this use is an accepted component of the local traffic network (notwithstanding that the site is presently non-operational).
The various formulae useful for estimating traffic demand in the RTA Guide to Traffic Generating Developments (2002) and the RMS Trip Generation Surveys – Service Stations (TEF, 2013) rely on parameters including site area, convenience store floor area, and number of service channels (rows of pumps). The proposal does not involve alteration to any of these components, and is therefore not considered to be an intensification of the existing use.
On this basis, it is the assessment of Council staff and Transport for NSW (TfNSW) that the proposal will not generate additional traffic volumes; nor result in a nexus for substantial highway intersection upgrades. The low-cost, contemporary safety and amenity improvements enquired by conditions above, will be suitable to maintain the safety, efficiency and operation of the classified road. Subsequent approval from TfNSW will be required for works within the road reserve under Section 138 of the Roads Act 1993.
Traffic generation associated with the development will be imperceptible within the context of existing traffic volumes. The capacity of the local road network will be suitable to cater for additional volumes.
· The proposed development is not sensitive to traffic noise or vehicle emissions.
Clause 104 Traffic-generating Development
A service station is a listed traffic-generating development pursuant to Clause 104 and Schedule 3 of SEPP Infrastructure 2007. This clause states in part:
(3) Before determining a development application for development to which this clause applies, the consent authority must -
(a) give written notice of the application to RMS within 7 days after the application is made, and
(b) take into consideration -
(i) any submission that RMS provides in response to that notice within 21 days after the notice was given (unless, before the 21 days have passed, RMS advises that it will not be making a submission), and
(ii) the accessibility of the site concerned, including -
(A) the efficiency of movement of people and freight to and from the site and the extent of multi-purpose trips, and
(B) the potential to minimise the need for travel by car and to maximise movement of freight in containers or bulk freight by rail, and
(iii) any potential traffic safety, road congestion or parking implications of the development.
The proposed development was referred to TfNSW for consideration and comment. No objection was raised to the proposal, subject to conditions (referred to under Clause 101 above) which are included in the attached Notice of Approval.
As outlined in the foregoing section of this report, the proposed development will not adversely impact on traffic safety or road congestion.
State Environmental Planning Policy 64 Advertising and Signage
The proposal involves installation of brand signage to fascia canopy and a 6m high freestanding pylon sign adjacent to the existing sales building. SEPP 64 Advertising and Signage is applicable and states in part:
3 Aims, Objectives etc
(1) This Policy aims:
(a) to ensure that signage (including advertising):
(i) is compatible with the desired amenity and visual character of an area, and
(ii) provides effective communication in suitable locations, and
(iii) is of high quality design and finish, and
(8) Granting of Consent to Signage
A consent authority must not grant development consent to an application to display signage unless the consent authority is satisfied:
(a) that the signage is consistent with the objectives of this Policy as set out in Clause 3 (1) (a), and
(b) that the signage the subject of the application satisfies the assessment criteria specified in Schedule 1.
The following comments are provided in response to the relevant matters.
1 - Character of the Area
· Is the proposal compatible with the existing or desired future character of the area or locality in which it is proposed to be located?
· Is the proposal consistent with a particular theme for outdoor advertising in the area or locality?
Pylon signs are a typical advertising form in Lucknow, associated with ribbon commercial development along the highway. The proposed pylon sign will complement and reinforce this pattern. It is noted that a pylon sign associated with the service station is a longstanding visual element in the village. The existing sign will be removed and replaced with another smaller structure nearer to the sales building. The proposed fascia signage to the fuel canopy is a typical and expected form of signage associated with a service station.
2 - Special Areas
· Does the proposal detract from the amenity or visual quality of any environmentally sensitive areas, heritage areas, natural or other conservation areas, open space areas, waterways, rural landscapes or residential areas?
The subject land is located within a village and conservation setting and adjoins a dwelling house to the east. The site is located within the business core of the village near the intersection of Mitchell Highway/Phoenix Mine. The proposed signage will complement other signage nearby and will be generally suitable in this setting (see comments below in relation to height).
Council’s Heritage Advisor raised no objection to the proposed signage scheme, subject to removal of existing signs on the site. Conditions are included to this effect. It is considered that limited onsite advertising as proposed, will be suitable in the heritage setting.
In order to minimise the impacts of signage for the adjoining dwelling to the east, conditions are included requiring an illumination curfew consistent with service station trading hours.
3 - Views and Vistas
· Does the proposal obscure or compromise important views?
· Does the proposal dominate the skyline and reduce the quality of vistas?
· Does the proposal respect the viewing rights of other advertisers?
Other pylon signs in the Lucknow streetscape are lower in height, and generally relate to the height of improvements on the land. A condition is included limiting the overall height of the pylon sign to 5.4m, consistent with the height of the proposed fuel canopy. The proposed signage scheme will not impact on viewing rights of adjoining businesses along the highway. Views in the streetscape corridor will be maintained.
4 - Streetscape, Setting or Landscape
· Is the scale, proportion and form of the proposal appropriate for the streetscape, setting or landscape?
· Does the proposal contribute to the visual interest of the streetscape, setting or landscape?
· Does the proposal reduce clutter by rationalising and simplifying existing advertising?
· Does the proposal screen unsightliness?
· Does the proposal protrude above buildings, structures or tree canopies in the area or locality?
· Does the proposal require ongoing vegetation management?
The proposed pylon sign will be consistent with the streetscape pattern for freestanding pylon signs. Conditional reduction in the height of the pylon sign will ensure the structure will not protrude above existing improvements on the land. The proposed signage scheme will have nil impact onsite vegetation. Removal of the existing concrete pad and pylon sign in road reserve at site frontage, and reinstatement of footpath will improve street presentation of the site.
5 - Site and Building
· Is the proposal compatible with the scale, proportion and other characteristics of the site or building, or both, on which the proposed signage is to be located?
· Does the proposal respect important features of the site or building, or both?
· Does the proposal show innovation and imagination in its relationship to the site or building, or both?
The proposed pylon sign will be located nearby to the existing sales building, and be visually associated with the commercial building group on this site and the adjoining western site (Lucknow Tavern). Signage will be removed from the adjoining dwelling to the east. The proposed fascia signage to canopy will be wholly located within the building envelope and will not dominate each fascia elevation. The overall signage scheme is considered to a minor and acceptable duplication of advertising content. Conditions are included requiring removal of existing onsite advertising; and further development consent be obtained for additional signage that is not exempt development.
6 - Associated Devices and Logos with Advertisements and Advertising Structures
· Have any safety devices, platforms, lighting devices or logos been designed as an integral part of the signage or structure on which it is to be displayed?
Not applicable.
7 - Illumination
· Would illumination result in unacceptable glare?
· Would illumination affect safety for pedestrians, vehicles or aircraft?
· Would illumination detract from the amenity of any residence or other form of accommodation?
· Can the intensity of the illumination be adjusted, if necessary?
· Is the illumination subject to a curfew?
The proposed pylon sign will be internally illuminated. The precinct is already subject to high ambient illuminance associated with street lighting and external lighting to nearby commercial premises. In order to maintain amenity for the adjoining dwellings, conditions are included requiring an illumination curfew consistent with trading hours; no flashing or moving signage content; and signage lighting to comply with AS 4282-1997 Control of the Obtrusive Effects of Outdoor Lighting.
8 - Safety
· Would the proposal reduce the safety for any public road?
· Would the proposal reduce the safety for pedestrians or bicyclists?
· Would the proposal reduce the safety for pedestrians, particularly children, by obscuring sightlines from public areas?
The proposed signage will be wholly located within the subject land, and will not conflict with the movement of vehicles, pedestrians or cyclists. Conditions are included requiring no flashing or moving signage content; and compliance with Transport Corridor Outdoor Advertising and Signage Guidelines (DPE 2017).
Provisions of any Draft Environmental Planning Instrument that has been Placed on Exhibition 4.15(1)(A)(Ii)
State Environmental Planning Policy Draft Remediation of Land
Draft Remediation of Land SEPP is applicable. The Draft SEPP requires in part that consideration be given to potential contamination on nearby or neighbouring properties and groundwater.
The complete contamination status of adjoining lands is unknown, however, contamination is usually a relevant matter for consideration in the village of Lucknow. The proposed development is, of itself, a Table 1 purpose. The contamination status of the adjoining lands will not impact on the proposed development.
Draft Orange Local Environmental Plan 2011 (Amendment 24)
Draft Amendment 24 is with the Department of Planning for finalisation. The Draft Plan involves various administrative amendments to the LEP including updated maps, and new and amended clauses. The proposed development is not contrary to any matter contained in the Draft Plan.
Draft Orange Local Environmental Plan 2011 (Amendments 25 and 26)
Draft Orange LEP 2011 Amendments 25 and 26 are currently on public exhibition (August 2020). The Draft Plans relate to land at 1 Leewood Drive and 185 Leeds Parade respectively, and have no impact for the proposed development.
DESIGNATED DEVELOPMENT
‘Service stations’ are not listed as designated development pursuant to Part 1 Schedule 3 of the Environmental Planning and Assessment Regulation (EPAR) 2000.
The nearest listed landuse in Schedule 3 comprises ‘petroleum works.’ Neither the Standard Instrument nor EPAR 2000 define ‘petroleum works.’
‘Petroleum related works’ are defined in SEPP (Mining, Petroleum Production and Extractive Industries) 2007 as:
Any works, structures or equipment that are ancillary or incidental to petroleum production and includes all works, structures and equipment that a production lease under the Petroleum (Onshore) Act 1991, or a production licence under the Petroleum (Submerged Lands) Act 1982, entitles the lease or licence holder to construct, maintain or execute.
The proposed development involves the storage and retail sale of liquid fuel products and is outside of the definition, scope and scale ‘petroleum works’/‘petroleum related works.’ The proposed development is not designated development.
INTEGRATED DEVELOPMENT
The proposed development is not integrated development.
Provisions of any Development Control Plan S4.15(1)(A)(Iii)
Development Control Plan 2004
The following parts of DCP 2004 are applicable to the proposed development:
· Part 0 – Transitional Provisions – 0.4-11 Transport Routes
· Part 2 - Natural Resource Management
· Part 3 - General Considerations
· Part 4 - Special Environmental Considerations
· Part 7 – Development in Residential Area
· Part 13 – Heritage Development
· Part 15 – Car Parking
The relevant matters in Parts 0, 2, 3, 4 and Infill Guidelines were considered in the foregoing assessment under Orange LEP 2011 and SEPP Infrastructure 2007.
The relevant matters in Parts 7, 13 and 15 and are addressed below.
Part 0.4-7 Lucknow & Part 7.13 Development in the Village of Lucknow
The relevant Planning Outcomes at Parts 0.4-7 and 7.13 are considered below:
· A geotechnical report, prepared by a suitably quality consultant is provided to Council… addressing the suitability of the land for the development, taking into account the effect of the proposal upon mine shafts…
· Development proposals involving new buildings or works on or near land identified as being subject to former mine activity include sufficient information to demonstrate that the land is suitable for the development…
The subject land has longstanding use a service station and is not known to have been subject to former mine activity. Notwithstanding, a condition is including requiring preparation and submission of a geotechnical report, certifying the site is suitable for upgrading works, having regard to mine subsidence.
· A report identifying that the land is suitable for development after being investigated for potential land contamination…
As outlined in the foregoing sections of this report, Environmental Site Assessment was submitted in support of the proposal (NEO Consulting November 2017). The assessment concludes that the site is suitable for continued use as a fuel service site. It is noted that the submitted Environmental Site Assessment does not include soil samples in the vicinity of/underneath the existing underground fuel storage tanks, as these are yet to be removed. Conditions are included requiring contamination testing and appropriate disposal of excavated material from the site; and contamination validation at the completion of excavation.
· Commercial development is located with the established business core of the Village centred on the Mitchell Highway/Phoenix Mine intersection. Buildings and associated signage are designed to relate to the traditional mining character of the Village to reinforce the mining history of the Village.
The subject land is located within the established business core of the Village, nearby the intersection of the Mitchell Highway/Phoenix Mine Road. The proposed development does not relate to the existing sales building, which will be retained in its current form. Further consent will be required for upgrading of this building, excepting works that are exempt development. As outlined above, the proposed signage scheme is considered suitable subject to conditions in relation to height, content and illumination curfew.
As considered in the foregoing sections of this report, Council’s Heritage Advisor provides that ‘the use of standard structures [canopy] and the corporate colour scheme is accepted on the condition that suitable mitigation is provided for the impact of the contemporary structure within the historic setting.’ Mitigation conditions are included in relation to colours, signage and advertising.
· The development is serviced by the public sewerage and water reticulation system, taking into account the planned capacity of these systems.
The subject land is connected to Council’s reticulated sewer and water infrastructure. Council’s Assistant Development Engineer advises that sewer and water headworks charges are not applicable to the proposal, as there will be no increase in fuel bowsers.
Part 13.3 Heritage Consideration for Development
The relevant Planning Outcomes at Part 13.3 include:
· Development relates to significant features of heritage buildings on or near the site.
· Development conforms with recognised conservation principles.
The proposal is not adverse to the above Planning Outcomes. As outlined in the foregoing sections of this report, Council’s Heritage Advisor raised no objection to the proposal subject to mitigation conditions.
Part 15.6 Off-street Car Parking
The relevant Planning Outcomes at Part 15.6 include:
· Adequate off-street car parking is provided in accordance with the table...
· Car parking areas are designed according to Australian Standard.
The proposed development will satisfy the above Planning Outcomes. Pursuant to the DCP, onsite parking is required for service stations at a rate of three (3) spaces per workbay and one (1) space per 25m2 of shop, convenience store or payment area.
The proposed service station does not involve workbays and the existing sales building comprises floor area of 103m2. Therefore, 4.12 spaces will be required. Informal car parking is available on the land at the rear of the existing sales building, sufficient to accommodate the required number of spaces. Conditions are included requiring construction of the carpark consistent with Council’s Development and Subdivision Code. Sufficient manoeuvring area will be available within the carpark to allow a reverse manoeuvring from parking spaces; onsite manoeuvring; and forward direction egress through the site to the highway.
Provisions Prescribed By The Regulations S4.15(1)(A)(Iv)
Demolition of a Building (clause 92)
The proposal involves the removal of existing underground storage tanks. Conditions are included requiring the works to be carried out in accordance with applicable standards; and preparation and implementation of a waste management plan.
Fire Safety Considerations (clause 93)
The proposal does not involve a change of building use for an existing building. The proposed fuel canopy will be located more than 3m from buildings and boundaries.
Buildings to be Upgraded (clause 94)
The proposal does not involve the rebuilding, alteration, enlargement or extension of an existing building. Upgrading of the existing sales building is not required in conjunction with the proposed works.
BASIX Commitments (clause 97A)
Not applicable.
The Likely Impacts of the Development S4.15(1)(B)
The following likely impacts of the proposed development have been considered in the foregoing sections of this report and include:
· Setting, context and neighbourhood character.
· Visual impacts (streetscape presentation, landscaping, signage).
· Traffic matters (site access, onsite vehicle areas, car parking and manoeuvring, traffic generation and network capacity).
· Environmental impacts (biodiversity, groundwater, stormwater management, sediment control, waste management).
· Cultural significance (conservation setting, streetscape).
Other likely impacts are considered below.
Residential Amenity
Dwelling houses adjoin the site to the east and south, and are located opposite the site on the north side of the highway. The potential impacts on residential amenity associated with the proposal, and measures to mitigate those impacts are considered below.
Noise Impacts
An Operational Noise Assessment was submitted in support of the proposal (Rodney Stevens Acoustics May 2020). The assessment concludes that ‘noise emissions from the operation of the service station including the proposed mechanical plant comply with the Noise Policy for Industry (EPA 2017).’
The noise assessment provides a number of recommendations to maintain acoustic privacy for adjoining residential receivers including (but not limited to) solid fencing to the side and rear site boundaries; and screening of the air compressor enclosure.
Council’s Environmental Health Officer concurs with the findings and recommendations of the submitted noise assessment. Conditions are included to reflect the recommendations, together with additional conditions in relation to hours of operation (7am to 10pm); fuel delivery times (7am to 6pm); and noise emissions (5dB(A)).
Privacy
The proposed service station will not impact on privacy for the adjoining dwellings as follows:
· Perimeter fencing to side and rear boundaries will be upgraded.
· Conditional site landscaping to boundaries will provide additional screening and separation.
· The entrance to the existing sales building is removed from and will not oppose any adjoining dwelling.
Solar Access
The proposal will not alter internal or external solar access for any adjoining dwelling.
Air Quality
Tank fill points will be located beneath the canopy adjacent to the front bowser (circled in blue below); and the fuel vent stacks will be located in the south-east portion of the site, opposing the dwelling at 4609 Mitchell Highway (circled in red below) (see Figure 9).

Figure 9 – fill points and tank vents
Council’s Environmental Health Officer advises that the proposed development is unlikely to result in odour emissions. It is acknowledged that fuel odour emissions have likely been associated with historic service station use of the land. However, the proposed replacement tanks and infrastructure are of a contemporary design and specification, with internal odour containment measures including vapour recovery. Odour containment and monitoring will be consistent with the requirements of the Protection of the Environment Operations (Clean Air) Amendment (Vapour Recovery) Regulation 2009.
Fencing and landscaping to the site perimeters and change in ground levels between the service station and opposing dwellings will also assist to limit other emissions (eg onsite vehicles) beyond the site.
Lighting
In order to limit light spill from the subject land to adjoining dwellings, conditions are included requiring a curfew for illuminated signage consistent with hours of operation (7am to 10pm); no flashing or moving signage content; and all external lighting of the site and building be designed and installed to comply with AS 4282-1997 Control of the Obtrusive Effects of Outdoor Lighting.
Visual Amenity
The following proposed and conditional measures will improve the presentation of the site for opposing dwellings:
· New fencing to rear and side site boundaries.
· Implementation of site landscaping.
· Reconstructed footway crossings and new concrete driveways.
· Removal of concrete pad and pylon sign in the road reserve at the site frontage.
· Preparation and implementation of a Litter Patrol Management Plan.
Security
The proposed development was referred to NSW Police for consideration and comment. No objection was raised to the proposal subject to installation of CCTV, external lighting and duress alarm/panic button. Conditions are included to effect these requirements.
Social and Economic Effects
The proposed development is unlikely to generate a negative social or economic impact within the locality. The use of the land as a service station is a longstanding and accepted component of the village. The proposal involves upgrading of a derelict site, with positive impacts on village character and function, and flow-on effects for the local economy and regional centre status.
The Suitability of the Site S4.15(1)(C)
The subject land is suitable for the proposed development due to the following:
· The proposed development is permitted on the subject land zoning.
· The site is located within the business core of the Village.
· The proposal comprises an environmental upgrade of the longstanding service station use of the land.
· All utility services are available and adequate.
· Sufficient onsite car parking and manoeuvring area will be available.
· The local road network is suitable to support the proposal without upgrade.
· The contamination status of the land is suitable for the proposed development; further validation of excavated material will occur during works.
· The land may be affected by naturally occurring asbestos; suitable management will be required during construction works.
· The land may be affected by subsidence associated with former mining use in the village. Conditional geotechnical investigation will confirm suitability.
· The land is not subject to other known natural hazards.
· The site is contained within a conservation area, and sympathetic site upgrading is appropriate.
· The site has no particular environmental values.
Any Submissions Made In Accordance With The Act S4.15(1)(D)
The proposed development comprises "notified development" pursuant to Council’s Community Participation Plan 2019.
Written notice of the application was given for the prescribed period. At the end of that period, two submissions had been received from the adjoining owner to the east (at 4609 Mitchell Highway). The issues raised in those submissions are considered below.
The proposal will devalue the adjoining dwelling
This is not a valid consideration in the assessment of a development application pursuant to the Environmental Planning and Assessment Act 1979. Notwithstanding, there is no evidence to suggest that complementary non-residential uses will devalue nearby dwellings. Site and premises upgrading as proposed may result in favourable impacts on property values nearby to the site.
The proposal will have unreasonable noise impacts (vehicles, plant)
Various conditions are included to ensure noise emissions associated with the development will comply with the Noise Policy for Industry (EPA 2017). These conditions include:
· Trading hours of 7am to 10pm.
· Fuel delivery hours of 7am to 6pm.
· Physical screening of mechanical plant.
· Sound barrier solid fencing to side and rear boundaries.
· Noise emissions not to exceed 5dB(A).
Illumination of signage will cause nuisance glare
Various conditions are include to minimise light spill from signage and other external lighting. These conditions include:
· Signage illumination curfew consistent with trading hours (7am to 10pm).
· Signage content shall not include flashing or moving content.
· External lighting to comply with AS 4282-1997 Control of the Obtrusive Effects of Outdoor Lighting.
Fumes from the tank vents cause air pollution
As outlined in the foregoing sections of this report, Council’s Environmental Health Officer considers that fuel odour emissions will be negligible. The proposed fuel tanks and associated infrastructure are a contemporary design and specification to the existing facility, with odour containment measures including vapour recovery.
Night-time refuelling of tanks is unreasonable
Conditions are included limiting fuel delivery hours to 7am to 6pm.
Turning lanes are required on the highway at the site frontage to access the site
As outlined in the foregoing sections of this report, it is the assessment of Council staff and TfNSW that the proposal does not involve an intensification of the existing use of the land. The proposal will not alter existing site area, convenience store floor area or service channels (rows of pumps). The development will not generate additional traffic volumes nor result in a nexus for substantial highway intersection upgrades.
The proposal does not consider the movement of pedestrians
Conditions are included requiring reinstatement of the public footpath at the site frontage.
Twenty-four hour operation is unreasonable in the Village
A condition is included limited trading hours to 7am to 10pm.
Access driveways should be designed Entry (eastern driveway) and Exit (western driveway)
The proposed access arrangements involve vehicle entry via the eastern driveway, and egress via the western driveway. TfNSW has included conditions requiring the provision of signage at the driveways to enforce these arrangements.
Measures are required to protect stormwater infrastructure at the site frontage of 4609 Mitchell Highway
A condition is included requiring reconstruction of the subject stormwater outlet clear of the driveway reconstruction works, and including a concrete end wall or enclosure to protect the outlet.
A dual centre turning lane is required to access the site when turning across the highway from Orange
As outlined, Council staff and TfNSW consider that highway intersection upgrades will not be required for the proposed development. Conflicts between vehicles turning into the site and travelling east will be reduced by new NO STOPPING zones at the site frontage (see Figure 10 below). NO STOPPING zones will enable standing vehicles to be safely passed in the road shoulder. Conditions are included to effect these arrangements.

Figure 10 – conditional NO STOPPING zones at the site frontage
Noise proof fencing, 2.1m in height should be erected on the common boundary
Conditions are included requiring erection of 2.1m high lapped and capped timber palings on the common boundary with 4609 Mitchell Highway. It is noted that the submitted noise assessment requires a 1.8m high solid fence on this boundary. It is considered to be a reasonable low-cost amenity improvement for the nearest adjoining dwelling to provide additional height for improved visual and acoustic outcomes.
PUBLIC INTEREST s4.15(1)(e)
The proposal is not inconsistent with any relevant policy statements, planning studies, guidelines etc that have not been considered in this assessment. Site upgrading, with improved environmental protection works, will have positive impacts on village character and function, and flow-on effects for the local economy and regional centre status. The proposal is considered to be in the public interest.
SUMMARY
The proposed service station upgrade is permitted with consent. Notable planning matters considered in this report include the suitability of the local road network to accommodate traffic associated with the development; the impacts on the proposal on nearby residential amenity; and the constraints associated with the Village character and conservation setting.
Two (2) public submissions were received, which raised concerns in relation to residential amenity (noise, light and odour); and traffic arrangements (site access and highway upgrade).
On balance, it is considered that the proposed development satisfies the Local and State planning provisions applicable to the site and particular landuse. Approval of the application is recommended. Conditions of consent are included in the attached Notice of Approval to mitigate and manage arising impacts associated with the development.
COMMENTS
The attached Notice of Approval includes conditions from:
· Environmental Health and Building Inspector
· Environmental Health Officer
· Assistant Development Engineer
· Heritage Advisor
· Transport for NSW
· Manager City Presentation
· NSW Police
1 Notice of Approval, D20/51386⇩
2 Plans, D20/50803⇩
3 Submissions, D20/50802⇩
Planning and Development Committee 1 September 2020
Attachment 1 Notice of Approval
|
|
ORANGE CITY COUNCIL
Development Application No DA 191/2020(1)
NA20/ Container PR18810 |
NOTICE OF DETERMINATION
OF A DEVELOPMENT APPLICATION
issued under the Environmental Planning and Assessment Act 1979
Section 4.18
|
Development Application |
|
|
Applicant Name: |
Brothers Three Pty Ltd |
|
Applicant Address: |
C/- MCHP Architects Pty Ltd Suite 5, 38-46 Albany Street ST LEONARDS NSW 2065 |
|
Owner’s Name: |
Brothers Three Pty Ltd |
|
Land to Be Developed: |
Lot 101 DP 1053642 - 4613 Mitchell Highway, Lucknow |
|
Proposed Development: |
Service Station (removal of existing fuel dispensers, fill points, underground fuel tanks and pipework; construction of a two dispenser covered vehicle fuelling area, new underground fuel tanks and forecourt pollution control system) and Business Identification Signage |
|
|
|
|
Building Code of Australia building classification: |
To be determined by the PC |
|
|
|
|
Determination made under Section 4.16 |
|
|
Made On: |
1 September 2020 |
|
Determination: |
CONSENT GRANTED SUBJECT TO CONDITIONS DESCRIBED BELOW: |
|
|
|
|
Consent to Operate From: |
2 September 2020 |
|
Consent to Lapse On: |
2 September 2025 |
Terms of Approval
The reasons for the imposition of conditions are:
(1) To ensure a quality urban design for the development which complements the surrounding environment.
(2) To maintain neighbourhood amenity and character.
(3) To ensure compliance with relevant statutory requirements.
(4) To provide adequate public health and safety measures.
(5) To ensure the utility services are available to the site and adequate for the development.
(6) To prevent the proposed development having a detrimental effect on adjoining land uses.
(7) To minimise the impact of development on the environment.
|
|
|
Conditions
(1) The development must be carried out in accordance with:
(a) Drawings by MCHP Architects dated 05.03.2020,
Drawing Nos 20-011-DA01 Rev D; 20-011-DA02 Rev B; 20-011-DA03 Rev D (3 sheets)
(b) statements of environmental effects or other similar associated documents that form part of the approval
as amended in accordance with any conditions of this consent.
|
PRESCRIBED CONDITIONS |
(2) All building work must be carried out in accordance with the provisions of the Building Code of Australia.
(3) A sign is to be erected in a prominent position on any site on which building work, subdivision work or demolition work is being carried out:
(a) showing the name, address and telephone number of the principal certifying authority for the work, and
(b) showing the name of the principal contractor (if any) for any building work and a telephone number on which that person may be contacted outside working hours, and
(c) stating that unauthorised entry to the site is prohibited.
Any such sign is to be maintained while the building work, subdivision work or demolition work is being carried out.
(4) Where any excavation work on the site extends below the level of the base of the footings of a building on adjoining land, the person having the benefit of the development consent must, at the person’s own expense:
(a) protect and support the adjoining premises from possible damage from the excavation, and
(b) where necessary, underpin the adjoining premises to prevent any such damage.
Note: This condition does not apply if the person having the benefit of the development consent owns the adjoining land or the owner of the adjoining land has given consent in writing to this condition not applying.
|
PRIOR TO THE ISSUE OF A CONSTRUCTION CERTIFICATE |
(5) DA 33/2018(1) shall be surrendered prior to issue of a Construction Certificate.
(6) The steel frame and soffit to the fuelling canopy shall be painted Dulux Shale Grey, and noted on the Construction Certificate drawings.
(7) The pylon sign shall have a maximum height of 5.4m, and be noted on the Construction Certificate Drawings.
(8) A landscape plan shall be submitted for the approval of the Manager Development Assessments. The plan shall include:
· Hedge screening to side (east) and rear (south) boundaries; and
· A minimum (2) trees in the south-east rear corner of the site with minimum 70L container size at planting, and mature height of 6m.
(9) A geotechnical report shall be submitted and approved by Council’s Manager Development Assessments, which certifies that the site is not at risk from mine subsidence and that the site is suitable for the development having regard to mine subsidence.
(10) The applicant is to submit a waste management plan that describes the nature of wastes to be removed, the wastes to be recycled and the destination of all wastes. All wastes from the demolition and construction phases of this project are to be deposited at a licensed or approved waste disposal site.
(11) The applicant shall prepare and submit a Litter Patrol Management Plan for the approval of the Manager of Building and Environment prior to the issue of a construction certificate. The Litter Patrol Management Plan shall detail the commitments required to be undertaken by the operator of the premises to suitably manage the pick-up of rubbish from the site and the surrounding street network and open spaces.
(12) Engineering plans providing complete details of the proposed driveway and car parking areas are to be submitted to Orange City Council or an Accredited Certifier (Categories B1, C3, C4, C6) upon application for a Construction Certificate. These plans are to provide details of levels, cross falls of all pavements, proposed sealing materials, proposed drainage works, line marking and signage and are to be in accordance with Orange City Council Development and Subdivision Code.
The plans shall detail the removal of all signs and the concrete slab located in the area of road reserve between the two driveways. This area shall be reinstated as public footpath to the standards and requirements of the Orange City Council Development and Subdivision Code.
The existing bitumen sealed footpath crossings are to be reconstructed to a heavy duty concrete or bitumen sealed standard for both entrances to the development. The reconstruction of the laybacks and footpath crossings shall accommodate the turn path of a 19m articulated vehicle. The driveway shall be constructed to the standards stated in the Orange City Council Development and Subdivision Code and TfNSW requirements.
The sewer inspection shaft for the property shall be located and raised to the finished level of the driveway and fitted with a trafficable gas tight lid.
(13) All stormwater from the impervious forecourt, manoeuvring and parking areas of the site (both existing and proposed) shall be collected and piped to a stormwater treatment system. The design and construction of the stormwater treatment system for the subject land shall ensure that the quality of stormwater leaving the developed site achieves the following stormwater quality targets:
· 90% reduction in the post development average annual gross pollutant (>5 millimetres) load.
· 85% reduction in the post development mean annual load of Total Suspended Solids (TSS);
· 65% reduction in the post development mean annual load of Total Phosphorus (TP);
· 45% reduction in the post development mean annual load of Total Nitrogen loads (TN);
· No observable Hydrocarbons present in stormwater discharge (<10ppm).
Orange City Council is to approve engineering plans for this stormwater system prior to the issuing of a Construction Certificate. The applicant shall undertake comprehensive water quality modelling on for the site, using an accredited assessment tool (recommended using Music™ or other approved assessment tool) and shall include copies of the electronic data files. Treated stormwater shall be piped to the existing roadside inlet pit.
The existing roadside inlet pit shall be reconstructed as a surcharge pit with a grated inlet.
(14) A water and soil erosion control plan is to be submitted to Orange City Council or an Accredited Certifier (Categories B1, C3, C4, C6) for approval prior to the issuing of a Construction Certificate. The control plan is to be in accordance with the Orange City Council Development and Subdivision Code and the Landcom, Managing Urban Stormwater; Soils and Construction Handbook.
(15) Backflow Prevention Devices are to be installed to AS3500 and in accordance with Orange City Council Backflow Protection Guidelines. Details of the Backflow Prevention Devices are to be submitted to Orange City Council prior to the issuing of a Construction Certificate.
|
PRIOR TO WORKS COMMENCING |
(16) A detailed site plan shall be submitted to Council prior to works commencing. The site plan shall accurately show the location where excavated material will be stockpiled, identify all drainage channels (natural or constructed) within the site and show the measures that will be implemented to prevent sediment from entering the drainage channels.
(17) Soil erosion control measures shall be implemented on the site.
(18) A Construction Certificate application is required to be submitted to, and issued by Council/Accredited Certifier prior to any excavation or building works being carried out onsite.
(19) A temporary onsite toilet is to be provided and must remain throughout the project or until an alternative facility meeting Council’s requirements is available onsite.
|
DURING CONSTRUCTION/SITEWORKS |
(20) All construction/demolition work on the site is to be carried out between the hours of 7.00 am and 6.00 pm Monday to Friday inclusive, 7.00 am to 5.00 pm Saturdays and 8.00 am to 5.00 pm Sundays and Public Holidays. Written approval must be obtained from the General Manager of Orange City Council to vary these hours.
(21) A Registered Surveyor’s certificate identifying the location of the building on the site must be submitted to the Principal Certifying Authority.
(22) All construction works are to be strictly in accordance with the Reduced Levels (RLs) as shown on the approved plans.
(23) All materials on site or being delivered to the site are to be contained within the site. The requirements of the Protection of the Environment Operations Act 1997 are to be complied with when placing/stockpiling loose material or when disposing of waste products or during any other activities likely to pollute drains or watercourses.
(24) Building demolition is to be carried out in accordance with Australian Standard 2601:2001 - The Demolition of Structures and the requirements of Safe Work NSW.
(25) Any excavated material removed from the site shall be tested for contamination and a record in accordance with current procedures applicable in NSW made and submitted to both the EPA and Council. The destination of the removed material is to be accurately recorded and passed on to Council and the EPA. The receiver of waste material must be licensed by the NSW Environment Protection Authority to receive that waste. If a non-licensed premises is intended to receive waste from the site then an approved notice within the meaning of Section 143(4) of the Protection of the Environment Operations Act 1997 (Section 143 Notice) must be supplied prior to removal of the material from the remediation site. Details of material removed including volume, mass, classification, destination and any Section 143 Notices are to be submitted to Council and the EPA.
(26) Soil disturbance activities must not cause any environmental harm outside the site. The soil disturbance area is to be fully bunded, fenced and dust suppression measures implemented during the excavation and construction phases. Erosion and sediment controls must be in place to prevent any soil leaving the remediation site. Runoff from areas of potential contaminated soil, whether in situ, stockpiled or in excavation pits, must not be permitted to leave the site without relevant testing or treatment.
(27) Further validation is required after completion of the excavation, but prior to the excavation being filled, or new tanks installed, that certifies there is no risk from residual contaminants to groundwater or the water table from the site. This further validation shall be carried out in accordance with current reporting standards. In the event that the excavated site reveals levels of contamination that are either a risk to human health or at risk of entering the water table or groundwater sources, further remediation (requiring separate development consent) is required to be carried out prior to further work on the site under this development consent proceeding.
(28) Any adjustments to existing utility services that are made necessary by this development proceeding are to be at the full cost of the developer.
(29) The provisions and requirements of the Orange City Council Development and Subdivision Code are to be applied to this application and all work constructed within the development is to be in accordance with that Code.
The developer is to be entirely responsible for the provision of water, sewerage and drainage facilities capable of servicing the development from Council’s existing infrastructure. The developer is to be responsible for gaining access over adjoining land for services where necessary and easements are to be created about all water, sewer and drainage mains within and outside the lots they serve.
(30) All driveway, vehicle manoeuvring and parking areas are to be sealed with bitumen, hot mix or concrete and are to be designed for all expected loading conditions (provided however that the minimum pavement depth for gravel and flush seal roadways is 200mm) and be in accordance with the Orange City Council Development and Subdivision Code.
(31) Heavy-duty concrete kerb and gutter laybacks and footpath crossings are to be constructed for the entrances to the proposed development. The location and construction of the laybacks and footpath crossings shall accommodate the turn path of a 19m articulated vehicle. The driveway shall be constructed to the standards stated in the Orange City Council Development and Subdivision Code.
(32) A 1.2m wide concrete pathway shall be constructed between the 2 driveways on the property frontage. The footpath shall be constructed to the standards stated in the Orange City Council Development and Subdivision Code.
(33) All services are to be contained within the allotment that they serve.
(34) The site is located within an area identified as containing serpentinite rock formations, which can contain chrysotile, a naturally occurring asbestos. Therefore the applicant or person with management or control of the site shall ensure that a written plan (an Asbestos Management Plan) for the site is prepared in accordance with the provisions of the Work Health and Safety Act 2011 and Work Health and Safety Regulation 2011.
To assist applicants with developing an Asbestos Management Plan, applicants are encouraged to access the ‘Asbestos Management Plan for Orange City Council 2014’, which is available on Council’s website: www.orange.nsw.gov.au
|
PRIOR TO THE ISSUE OF AN OCCUPATION CERTIFICATE |
(35) Landscaping shall be installed in accordance with approved plan and permanently maintained to the satisfaction of Council’s Manager Development Assessments.
(36) Acoustic fencing shall be erected to side and rear boundaries of the land, in accordance with the requirements of the Operational Noise Assessment (Rodney Stevens Acoustics May 2020).
Fencing shall comprise lapped and capped hardwood timber palings, to a height of 1.8m to rear (south) and side (west) boundary; and to a height of 2.1m to side (east) boundary. The height of the fence shall be measured from the highest finished ground level adjacent to each part of that fence.
(37) A total of four (4) car spaces shall be provided on the site in the existing car parking area noted on Drawing No. 20-011-DA01 Rev D. The parking spaces shall be constructed in accordance with the requirements of Council’s Development and Subdivision Code.
(38) All existing advertising signage and structures on the land shall be removed.
Brand signage shall be installed in accordance with the approved plans. The pylon sign shall have a maximum height of 5.4m.
(39) A consistent coloured concrete finish shall be provided over existing and proposed driveway areas and forecourt.
(40) The Closed Circuit Television (CCTV) system, lighting and duress alarm as required by NSW Police (see conditions below) shall be installed and made operational prior to the issue of an Occupation Certificate.
(41) No person is to use or occupy the building or alteration that is the subject of this approval without the prior issuing of an Occupation Certificate.
(42) The owner of the building/s must cause the Council to be given a Final Fire Safety Certificate on completion of the building in relation to essential fire or other safety measures included in the schedule attached to this approval.
(43) The following noise mitigation measures are to be implemented (in the locations marked on figure 6-1 of the Operational Noise Assessment Report (R180137R1 – Revision 5)) prepared by Rodney Stevens Acoustics, prior to issue of an Occupation Certificate:
· The air vents in the air compressor enclosure must be reviewed and approved for use by an acoustic consultant prior to installation
· The doors in the air compressor enclosure must not have any airgaps and door seals must be installed around the perimeter and threshold of the door
· The air conditioning unit is to be installed at ground level. A 1.6 metre screen must be erected to minimise the noise transmission from the proposed air conditioning unit. The screen must extend at least 1 metre from either side of the air conditioning unit.
(44) A minimum of three water monitoring wells are to be installed on the site to assess potential offsite migration of contamination and potential contamination of surrounding water bodies, in compliance with UPSS Regulation. Location of monitoring wells is to be determined by a suitably qualified person.
(45) A Certificate of Compliance, from a Qualified Engineer, stating that the stormwater treatment system complies with the approved engineering plans is to be submitted to the Principal Certifying Authority prior to the issuing of an Occupation Certificate.
(46) Certification from Orange City Council is required to be submitted to the Principal Certifying Authority prior to the issue of an Occupation Certificate stating that all works relating to connection of the development to Council assets, works on public land, works on public roads, stormwater, sewer and water reticulation mains and footpaths have been carried out in accordance with the Orange City Council Development and Subdivision Code and the foregoing conditions, and that Council will take ownership of the infrastructure assets.
(47) Certification of the installation and commissioning of testable Backflow Prevention Devices shall be submitted to Orange City Council by a plumber with backflow qualifications prior to the issue of an Occupation Certificate.
(48) All of the foregoing conditions are to be at the full cost of the developer and to the requirements and standards of the Orange City Council Development and Subdivision Code, unless specifically stated otherwise. All work required by the foregoing conditions is to be completed prior to the issuing of an Occupation Certificate, unless stated otherwise.
|
MATTERS FOR THE ONGOING PERFORMANCE AND OPERATION OF THE DEVELOPMENT |
(49) The service station shall be operated (in perpetuity) in a manner that is consistent with the Preliminary Hazard Analysis prepared by MCHP Architects (May 2020).
(50) The Closed Circuit Television (CCTV) system, lighting and duress alarm as required by NSW Police (see conditions below) shall be maintained and implemented at all times.
(51) The hours of operation of the service station shall not exceed 7am to 10pm, Monday to Sunday.
(52) Illuminated signage shall have an illumination curfew of 7am to 10pm.
(53) Illuminated signage and external lighting of the site and building shall comply with AS 4282-1997: Control of the obtrusive effects of outdoor lighting.
(54) Further development consent shall be obtained prior to the erection of any additional advertising structures or signs of a type that are not exempt development pursuant to SEPP (Exempt and Complying Development Codes) 2008. No sandwich boards, A-frame signs or similar shall be placed on Council’s footpath. Flashing or moving advertising structures or signage content is not permitted.
(55) The maximum number of annual fuel deliveries shall not exceed 150 deliveries.
(56) Any ancillary light fittings fitted to the exterior of the buildings are to be shielded or mounted in a position to minimise glare to adjoining properties.
(57) Statistical Inventory Reconciliation Analysis (SIRA) of deliveries, sales and dips of petroleum product is to be undertaken on a monthly basis in accordance with the Environment Protection Authority Guidelines.
(58) Emitted noise shall not exceed 5dB(A) above background sound level measured at the nearest affected residence.
(59) The “beep” signal installed on the tyre inflation device is to be disabled during the night time period (6.00pm to 7.00am)
(60) Deliveries, including deliveries made by petrol tankers, will be limited to daytime hours only (7.00 am to 6.00 pm)
(61) Copies of maintenance records for servicing of the approved stormwater treatment system shall be forwarded to Council on 1 December annually.
(62) The owner is required to provide to Council and to the NSW Fire Commissioner an Annual Fire Safety Statement in respect of the fire-safety measures, as required by Clause 177 of the Environmental Planning and Assessment Regulation 2000.
CONDITIONS FROM NSW POLICE
(1) Closed circuit television (CCTV) shall be installed to monitor the store and forecourt, sufficient to capture images of drivers and vehicle registrations.
(2) CCTV shall be recorded digitally.
(3) Staff shall be trained in the operation of CCTV.
(4) CCTV images shall be kept for a minimum of 28 days and be of high quality.
(5) Lighting shall be installed to support the operation of CCTV and to allow surveillance from passing traffic.
(6) Duress alarms shall be installed in the store and key holder details shall be provided to NSW Police.
CONDITIONS FROM TRANSPORT FOR NSW
(1) Prior to any Occupation Certificate, the developer shall complete all works within the road reserve required by the DA consent.
(2) Prior to construction commencing within the road reserve, concurrence to the detailed design shall be obtained from TfNSW under Section 138 of the Roads Act 1993. The design shall include the following works or acceptable alternatives to the satisfaction of, and at no cost to, Council and TfNSW:
- Removal of the pylon sign and concrete slab encroachment within the road reserve and reinstatement to verge. The new pylon sign shall be contained entirely within private property.
- Provision of a new public concrete pedestrian footpath for the full frontage of the site.
- Replacement of both existing driveway crossovers with new sealed (bitumen or concrete) crossovers. A private run-off apron shall be provided at the northwest-bound left turn into the site and outside the concrete table drain as part of the driveway renewal, to cater for public truck traffic up to 12.5m and fuel resupply trucks up to 19m, with swept paths to be shown on design plans. The minimum width of seal is to be 6m measured from the highway centre line, for 5m distance before the start of the driveway plus a 5m long taper, in accordance with Figure 8.2 of Austroads Guide to Road Design Part 4A.
- Reconstruction of the stormwater outlet serving 4609 Mitchell Highway, so it is clear of the driveway work and including a concrete end wall or enclosure to protect the outlet.
- Provision of ‘NO STOPPING’ (R5-400) signage to extend no stopping zones along both sides of the highway at the site frontage, for a distance of at least 60m on approach and 60m on departure from the turning points into site.
- Provision of ‘NO ENTRY’ (R2-4) signage on the property boundary at the entry (facing into site) and egress (facing highway) driveways.
- Provision of ‘NO ENTRY’ (R2-4), ‘VEHICLES OVER 12.5m’ (R9-223) and ‘AUTHORISED VEHICLES EXCEPTED’ (R9-229) signage on the property boundary at the entry driveway (facing highway). Signage sizes and positions are to be shown on the plans and shall be clearly readable from both highway approaches. The signage may be subject to a site inspection by and to the satisfaction of TfNSW.
- Connection of the site stormwater discharge to Council’s stormwater pit.
- TfNSW concurrence and any DA consent shall not alter existing maintenance responsibilities of TfNSW for any road or road-related infrastructure. Maintenance of infrastructure located outside the painted edge lines (fog lines) of the highway through-lanes, including but not limited to existing road shoulders or driveways, shall be at no cost to TfNSW.
- Prior to Roads Act Section 138 approval for works within the road reserve required as part of this DA, the landowner shall surrender DA 33/2018 in accordance with Section 4.17(5) of the Environmental Planning and Assessment Act 1979. Alternatively, prior to any works within the road reserve being authorised under DA33/2018, this development consent shall be surrendered.
- Landscaping, signage and the like are not to impede sight lines of traffic within or when passing, entering or departing from the site. Safe Intersection Sight Distance (SISD) requirements outlined in Austroads Guide to Road Design Part 4A are to be maintained in both directions at the intersections of driveways with the Mitchell Highway.
- Prior to the commencement of construction works, the proponent is to contact the TfNSW Field Traffic Manager to determine if a Road Occupancy Licence (ROL) is required. In the event that an ROL is required, the proponent is to obtain the ROL prior to works commencing within three (3) metres of the travel lanes on the Mitchell Highway.
- Signage is to be in accordance with the Transport Corridor Outdoor Advertising and Signage Guidelines (Department of Planning and Environment, 2017) and is not to flash, move or be objectionably glaring or luminous.
- A Registered Surveyor's Certificate identifying that the existing building and eaves are entirely within the site is to be submitted with the Section 138 application. Nothing in this consent permits encroachment of any structure within the road reserve.
- During operation, all activities including loading and unloading of goods associated with the development are to be carried out entirely within the site boundary and in a forwards-only direction. Vehicles longer than 12.5m shall not be permitted to access the site, other than semi-trailers for the purpose of fuel resupply. Service deliveries, including fuel decanting are to be undertaken outside peak hours of patronage.
|
|
|
Other Approvals
(1) Local Government Act 1993 approvals granted under Section 68.
Stormwater
(2) General terms of other approvals integrated as part of this consent.
(3) All stormwater is to be disposed of in a manner suitable to the site.
|
|
|
Right of Appeal
If you are dissatisfied with this decision, Section 8.7 of the Environmental Planning and Assessment Act 1979 gives you the right to appeal to the Land and Environment Court. Pursuant to Section 8.10, an applicant may only appeal within 6 months after the date the decision is notified.
|
Disability Discrimination Act 1992: |
This application has been assessed in accordance with the Environmental Planning and Assessment Act 1979. No guarantee is given that the proposal complies with the Disability Discrimination Act 1992.
The applicant/owner is responsible to ensure compliance with this and other anti-discrimination legislation.
The Disability Discrimination Act covers disabilities not catered for in the minimum standards called up in the Building Code of Australia which references AS1428.1 - "Design for Access and Mobility". AS1428 Parts 2, 3 and 4 provides the most comprehensive technical guidance under the Disability Discrimination Act currently available in Australia.
|
|
Disclaimer - S88B of the Conveyancing Act 1919 - Restrictions on the Use of Land: |
The applicant should note that there could be covenants in favour of persons other than Council restricting what may be built or done upon the subject land. The applicant is advised to check the position before commencing any work. |
|
|
|
|
Signed: |
On behalf of the consent authority ORANGE CITY COUNCIL |
|
Signature: |
|
|
Name: |
PAUL JOHNSTON - MANAGER DEVELOPMENT ASSESSMENTS |
|
Date: |
2 September 2020 |